Page 1 of 1
recording light sign
Posted: Fri, 2025-Feb-07, 16:10
by goodwater
Hey!
I am planning my studio and would like to install a recording light sign like this at the entrance to the studio:
I would like to be able to turn it on from a switch near the console, or better yet with a remote. The sign will be located about 20 feet from the console, on the wall of the other room:
I would prefer a device that plugs into a power outlet (no batteries to replace).
Do you have any products or suppliers to recommend to me?
Do you have an example to show me?
Any comments or ideas will be appreciated. Thanks!
recording light sign
Posted: Fri, 2025-Feb-07, 16:50
by gullfo
you'll need to make sure you run a wire then from your console to the sign. most of the wall signs i've seen have both powered and battery (esp the exit and other safety signs, as well as emergency lighting) so plan on locating an outlet nearby those devices as well.
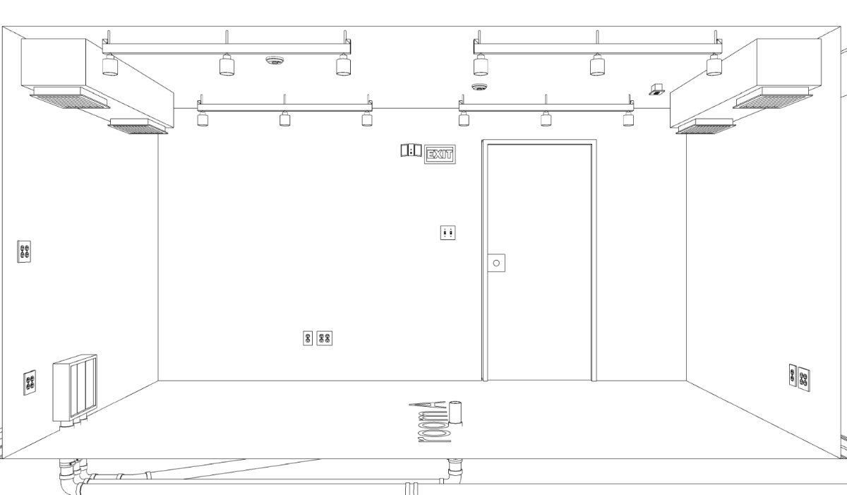
in this example i have the exit and emergency lights which have boxes positioned behind them as they're hardwired. same for the ceiling devices like the smoke and co detectors. on the opposite side in the hallway is the recording light (as well as more detectors, emergency lights etc). security camera feeds, remote controls, and the recording lights are routed to the rooms via plenum digital cables. to keep things neat.

- RECORDING STUDIO v005 ELEVATIONS NO ACOUSTICS.jpg (47.4 KiB) Viewed 90938 times

- RECORDING STUDIO v005 ELEVATIONS NO ACOUSTICS.jpg (47.4 KiB) Viewed 90938 times
recording light sign
Posted: Mon, 2025-Feb-10, 06:40
by Starlight
I chose to use Philips Hue lighting which means my red light - somewhat simpler than your nice recording box - is triggered by the little remote which I stood on top of the studio door so I could show you it all in one photo.
On the wall is an externally mounted socket, into which is plugged a Philips Hue Smart Plug, into which I plugged the short cable and a normal (non-Philips Hue) red bulb. The Smart Plug enables the Philips system to switch the power to the bulb on and off.
The mains cable for the light does not go through the studio walls, it is powered by the lighting in the corridor outside the studio, while the remote works anywhere, inside or outside the studio. I can have the remote in my pocket should I choose to.
It is one of many possibilities.
recording light sign
Posted: Tue, 2025-Feb-11, 18:41
by goodwater
Thanks gullfo, Starlight,
Your comments and ideas are very interesting. I will think about it!
recording light sign
Posted: Mon, 2025-Aug-18, 17:16
by daxliniere
I could make you that, @Goodwater, but being based in the UK, shipping will probably be expensive.
recording light sign
Posted: Sun, 2025-Nov-02, 10:42
by goodwater
I documented this in the thread about my build (here
https://www.digistar.cl/Forum/viewtopic.php?f=6&t=1241 ) but I'm posting it here too in case it might be useful to someone.
I used the box that came with a bottle of Porto, which includes a sliding plexiglass window.
Cutting out the self-adhesive letters
Putting letters onto the plexiglass and 4 coats of red paint
When the paint was completely dry, I carefully removed the letters.
I found a 10 inch led light and a WIFI electrical outlet (but I had to cut the 2 metal parts).
Final result
All that remains is to drill a hole in the back to pass the electrical wire through to plug in the outlet.
Stef
recording light sign
Posted: Sun, 2025-Nov-02, 14:19
by Starlight
goodwater wrote:Source of the postAll that remains is to drill a hole in the back to pass the electrical wire through to plug in the outlet.
... and turn it on so that we can see it lit up!
recording light sign
Posted: Sun, 2025-Nov-02, 20:16
by goodwater

Yes, indeed...after installing the plug and the light, I tested the Wi-Fi and turned on the light, but I forgot to take a picture...

I promise to post an update when it's installed!
