952 Studios Design Planning

Start your own studio thread here: Goals, plans, layouts, treatment, speakers, questions, queries, comments...
eightamrock
Full Member
Posts: 166
Joined: Thu, 2022-Jan-20, 13:47
Location: Somerset County, New Jersey, USA..

952 Studios Design Planning

#31

Postby eightamrock » Wed, 2022-Feb-16, 18:31

Update: I'm at the planning stage for permits etc. One step I had to take was to have a plumber (a friend) come out and give a thumbs up on my plan to add a bathroom. BAD NEWS. While it is 100% possible to do, the cost was going to be in excess of $20k. This is because the sewer line I would have hooked up to in my house is too high to give the appropriate drop that is required by the town for drainage. In order to add the bathroom we would have to trench around my entire property and tie it into the main sewer line at the opposite side of the house. This would result in a significantly higher cost because it would destroy an existing patio and I would need a certified plumber to tie it into the main at the street. Not to mention all the back filling and replanting of grass etc from the trenching. Bathroom is officially out of budget.

Luckily my wife is understanding and she has still greenlit the studio, sans bathroom. That said this changes things a bit and I am revisiting some fundamentals. One thing I am considering is just making the whole building slight smaller and having a one-room studio solution OR a one room studio and small iso booth. There are many cost benefits to this approach, but Im worried I will miss having the isolation of a control room and live room.

Another question if I still go with the above design, for an inside out room is that inherently an RFZ design? Would I only then be dealing with the bass trapping or would there be other considerations to make in the room treatment?



User avatar
gullfo
Senior Member
Posts: 791
Joined: Fri, 2021-Jun-25, 14:50
Location: Panama City Beach, FL USA

952 Studios Design Planning

#32

Postby gullfo » Thu, 2022-Feb-17, 15:02

you could start with the single room and add a vocal booth later if the gobo approach isn't sufficient. an inside-out design can be made to be an RFZ with appropriate configuration of the absorption and any necessary panels to manage the impulse response of the room.



eightamrock
Full Member
Posts: 166
Joined: Thu, 2022-Jan-20, 13:47
Location: Somerset County, New Jersey, USA..

952 Studios Design Planning

#33

Postby eightamrock » Mon, 2022-Mar-07, 12:29

While it's only tangentially related to my studio, I pulled the old console desk out of the flooded basement and tried to reclaim as much wood as I can. While I probably wont go back to a console, I'm really happy with how my "Reclaimed" desk is turning out. The only things left are to stain, and I have 8u space in the bottom of the racks, going to change that to 10u in each side. Also want to add a monitor shelf and some cable channel on the back to hide all the wiring.

The console tape is from old sessions and records I worked on. Considering just leaving it on there and staining over it to keep the history.... Also... my kid did 90% of the sanding. Have to start them young!

5EF189FE-1965-46C3-B013-160B6D903557.jpeg


11E00DA5-CC0E-414C-B59A-E164713863BF.jpeg


C2A719AE-75E2-4B70-A090-50A6ADE62FE6.jpeg


627A8902-07B3-43AA-A319-CD372E61BF64.jpeg


5CA70208-B282-4A38-BC92-6A4ACED3060D.jpeg


9EF1E0B8-1A38-4E2C-957C-697D584F011E.jpeg


77C1F6D8-440C-4003-A90D-C12AA172F838.jpeg


70D25564-AA21-4512-867B-0324A00579EB.jpeg



User avatar
endorka
Senior Member
Posts: 724
Joined: Mon, 2019-Sep-23, 06:36
Location: Scotland
Contact:

952 Studios Design Planning

#34

Postby endorka » Tue, 2022-Mar-08, 03:19

Nice one! I like the way you've applied the front and side trim too. Pinned, glued & clamped?

Cheers,
Jennifer



eightamrock
Full Member
Posts: 166
Joined: Thu, 2022-Jan-20, 13:47
Location: Somerset County, New Jersey, USA..

952 Studios Design Planning

#35

Postby eightamrock » Tue, 2022-Mar-08, 12:31

endorka wrote:Source of the post Nice one! I like the way you've applied the front and side trim too. Pinned, glued & clamped?

Cheers,
Jennifer


Yep, Thanks! You guessed it right. I clamped it all together then used glue and finish nails to secure it. I went over it with some wood filler to hide the nails and filled any gaps in the seam. I like the "industrial" look of the screw heads on the cabinet, but I wanted the top to look very clean. Overall I was just trying to hide as much of the plywood end grain as possible.



eightamrock
Full Member
Posts: 166
Joined: Thu, 2022-Jan-20, 13:47
Location: Somerset County, New Jersey, USA..

952 Studios Design Planning

#36

Postby eightamrock » Wed, 2022-May-04, 22:50

Here is a new design for my studio that I am starting to like. Major changes include adding a workshop to keep my tools, and other garage type things. Doing away with a big live room and investing almost all the space in single room studio with small iso booth. The booth would be for vocals, guitar cabs etc... should I do drums, I would just do it in the control room.

One question, would it be impossible to treat this room for mixing? I know a fundamental in control room design is stereo imaging and symmetry, but I have also seen people break this rule and still have incredible sounding mixes.

Screenshot 2022-05-04 221914.png


Screenshot 2022-05-04 223847.png


Screenshot 2022-05-04 223916.png


Screenshot 2022-05-04 223952.png



User avatar
gullfo
Senior Member
Posts: 791
Joined: Fri, 2021-Jun-25, 14:50
Location: Panama City Beach, FL USA

952 Studios Design Planning

#37

Postby gullfo » Thu, 2022-May-05, 09:59

that should work, just shape the "mix space" using the normal principles for freq balance, first reflections, and rear or room response. ceiling as well.



eightamrock
Full Member
Posts: 166
Joined: Thu, 2022-Jan-20, 13:47
Location: Somerset County, New Jersey, USA..

952 Studios Design Planning

#38

Postby eightamrock » Tue, 2022-Jun-07, 18:33

gullfo wrote:Source of the post that should work, just shape the "mix space" using the normal principles for freq balance, first reflections, and rear or room response. ceiling as well.


Thanks for the tips! After many many many many revisions, we finally have a design we are happy with. Great news is that we got the toilet back without the $25k price tag, using a macerating pump. While this looks like it will do the full duty of a recording studio the "live room" will double as storage for my tools and kids bikes, etc. I'm hoping it wont be too hard to seal up the double doors I plan to put in when I do want to track a band or a drum kit. In either case, the trade off is right for me. The control room is now a respectable 1620ft^2 with lots of light and a place for people to sit and hang while we track stuff. I think this will achieve my goals, I still have a lot of planning to do for treatment of the control room, but now I have more space to build deep bass traps, etc.

I guess we will be moving to a build thread soon!

Screenshot 2022-06-07 182210.png


Screenshot 2022-06-07 182141.png


Screenshot 2022-06-07 182110.png


Screenshot 2022-06-07 182029.png


Screenshot 2022-06-07 182004.png


Screenshot 2022-06-07 181905.png


Screenshot 2022-06-07 181834.png



User avatar
gullfo
Senior Member
Posts: 791
Joined: Fri, 2021-Jun-25, 14:50
Location: Panama City Beach, FL USA

952 Studios Design Planning

#39

Postby gullfo » Wed, 2022-Jun-08, 15:18

coolio!



eightamrock
Full Member
Posts: 166
Joined: Thu, 2022-Jan-20, 13:47
Location: Somerset County, New Jersey, USA..

952 Studios Design Planning

#40

Postby eightamrock » Thu, 2022-Jun-09, 14:19

gullfo wrote:Source of the post coolio!


Glenn, being that the control room is 15x12x9 (1620ft^2) would I be better off building it as an inside out room, or just treating the reflections and corners? Ive heard smaller rooms are better off with the most absorption you can do, but I dont know how true that is.



eightamrock
Full Member
Posts: 166
Joined: Thu, 2022-Jan-20, 13:47
Location: Somerset County, New Jersey, USA..

952 Studios Design Planning

#41

Postby eightamrock » Thu, 2022-Jun-09, 14:20

Also, I do fully plan to make the little booth/amp room an inside out room regardless. Want to have it fully dead in there.



User avatar
gullfo
Senior Member
Posts: 791
Joined: Fri, 2021-Jun-25, 14:50
Location: Panama City Beach, FL USA

952 Studios Design Planning

#42

Postby gullfo » Fri, 2022-Jun-10, 10:53

if you hang the reflective panels, you can simply put them up or take them off to change the room. a long French cleat system can also allow for positioning in the room. small rooms can benefit from being mostly dead.



eightamrock
Full Member
Posts: 166
Joined: Thu, 2022-Jan-20, 13:47
Location: Somerset County, New Jersey, USA..

952 Studios Design Planning

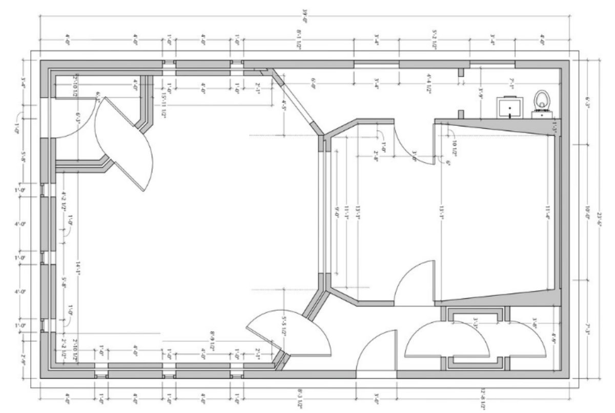
#43

Postby eightamrock » Tue, 2022-Aug-16, 15:03

Well the township didnt like my plans for the toilet, so I went back to the drawing board on things and made a few tweaks. I guess ill just put a bucket in the corner or something. My house bathroom is only a few yards away at worst.

This is the final version that was submitted (and approved). Im quite happy with it. The live room became smaller than I'd like, but honestly its a home studio, not a professional studio. I can fit a drum set and a few guys in there to jam and thats good enough for me.

I break ground before the fall, will start a build thread! Thanks for all the help so far. The treatment in these sketchups isnt final. I plan to do a 2 foot deep inside out wall at the rear of the studio that will be a massive bass trap. The front walls by the window into the live room will also be inside out walls with slat resonators. The small iso booth will be fully inside out as well. there will be glass doors between the live room, the air lock, and the control room. This will act as a make shift iso booth so bandmates can see each other if we need some isolation. Otherwise I am super excited to start building! I have a nice HVAC ducted minisplit system going in with a dedicated air changer. Cant wait to get building!

Screenshot 2022-08-14 233336.png


Screenshot 2022-08-14 233321.png


Screenshot 2022-08-14 233249.png


Screenshot 2022-08-14 233231.png


Screenshot 2022-08-14 233211.png


Screenshot 2022-08-14 233200.png


Screenshot 2022-08-14 233131.png


Screenshot 2022-08-14 233113.png


Screenshot 2022-08-14 233053.png


Screenshot 2022-08-14 233038.png


Screenshot 2022-08-14 233024.png


Screenshot 2022-08-14 233000.png



User avatar
gullfo
Senior Member
Posts: 791
Joined: Fri, 2021-Jun-25, 14:50
Location: Panama City Beach, FL USA

952 Studios Design Planning

#44

Postby gullfo » Wed, 2022-Aug-17, 11:06

one note - on the last image - the solid angled walls on either side of the desk - you would get more bang for the buck by making those straight so you can use those corners for trapping or later as part of a soffit mounted speaker system. it would require moving the door into the live room.



eightamrock
Full Member
Posts: 166
Joined: Thu, 2022-Jan-20, 13:47
Location: Somerset County, New Jersey, USA..

952 Studios Design Planning

#45

Postby eightamrock » Wed, 2022-Aug-17, 11:15

gullfo wrote:Source of the post one note - on the last image - the solid angled walls on either side of the desk - you would get more bang for the buck by making those straight so you can use those corners for trapping or later as part of a soffit mounted speaker system. it would require moving the door into the live room.


Thanks Glenn. I was copying an architecture for a similar sized space "Gray Box Studios, Nashville" that I really like.

Screen Shot 2022-04-04 at 12.59.06 PM.png


It happen to work out nicely since I could then move the door to the live room over a bit and bass trap the corner. If I straighten them out I lose that space, is it problematic for the live room to have a corner that cant have a bass trap in such a small space?

Also, when you have a moment, please respond to my PM about the DB. I think you might have missed it.




Who is online

Users browsing this forum: No registered users and 32 guests