Ive Been Planning This Garage Studio for 10 Years!
Ive Been Planning This Garage Studio for 10 Years!
Hi guys, thanks for the feedback. That's a bit of a concern about the Yellow Tongue!
My builder and Engineer said it was OK as long it was behind a moisture barrier, and well.. I've gone ahead and used it. Now I'm worried! Is there any extra precaution I should take at this point?
My builder and Engineer said it was OK as long it was behind a moisture barrier, and well.. I've gone ahead and used it. Now I'm worried! Is there any extra precaution I should take at this point?
Ive Been Planning This Garage Studio for 10 Years!
as long as it is really protected, then ok, but if it is exposed to moisture then i would be concerned.
Ive Been Planning This Garage Studio for 10 Years!
It will have a moisture wrap covering it and then fibre cement cladding, so hoping that is enough protection.
I will also go around and silicone seal all gaps for extra measure.
I will also go around and silicone seal all gaps for extra measure.
Ive Been Planning This Garage Studio for 10 Years!
I have a question about Silica Gel.
I read in this thread (https://www.digistar.cl/Forum/viewtopic.php?t=714) that I should use 200 grams of Silca per cubic metre in between my fixed glass window panes.
Will the gel one day become saturated and no longer effective? Should I put more in to make it last longer? What happens if I use too much?
I plan to be using this studio for at least 20 years!
I read in this thread (https://www.digistar.cl/Forum/viewtopic.php?t=714) that I should use 200 grams of Silca per cubic metre in between my fixed glass window panes.
Will the gel one day become saturated and no longer effective? Should I put more in to make it last longer? What happens if I use too much?
I plan to be using this studio for at least 20 years!
Ive Been Planning This Garage Studio for 10 Years!
Also, when Stuart says " 200 grams per cubic metre of air in the cavity", I assume we are referring to not just the window cavity, but rather the entire wall cavity in a decoupled system that the window is part of?
Ive Been Planning This Garage Studio for 10 Years!
depends on how you've built the windows, in my designs, the window air space is open to the rest of the dividing air space - that is the entire A part of MAM is one contiguous space. the window separation gaps are hidden via semi-rigid insulation and cloth or a very thin cut if going for an all wood surface - which has a layer of cloth under the trim to keep out duct.
so, if your air space needs dehumidification then a) you still have a moisture issue because either moisture is coming in from the outside, or b) you have moisture coming in from your interior space - so if the latter - you'd want to find the air access and seal it.
as far a dehumidification silica packs - depending on how often you need to change them, or dry them, then you'd want some sealed mass-matching access panel, possibly in multiple locations around, in order to change/dry them periodically (6 months? annually? check with manufacturer and also monitor them yourself for your conditions). so maybe a few heavy metal & damped access panels (like 6"x6") in a couple of walls so you can stand up the desiccate packs / cups.
so, if your air space needs dehumidification then a) you still have a moisture issue because either moisture is coming in from the outside, or b) you have moisture coming in from your interior space - so if the latter - you'd want to find the air access and seal it.
as far a dehumidification silica packs - depending on how often you need to change them, or dry them, then you'd want some sealed mass-matching access panel, possibly in multiple locations around, in order to change/dry them periodically (6 months? annually? check with manufacturer and also monitor them yourself for your conditions). so maybe a few heavy metal & damped access panels (like 6"x6") in a couple of walls so you can stand up the desiccate packs / cups.
Ive Been Planning This Garage Studio for 10 Years!
OK thats great thanks Glenn. Pic below showing the frames in builld, I will wrap breathable fabric around that 3cm gap, so my window cavity iwill ndeed be exposed to the main wall and roof cavity.
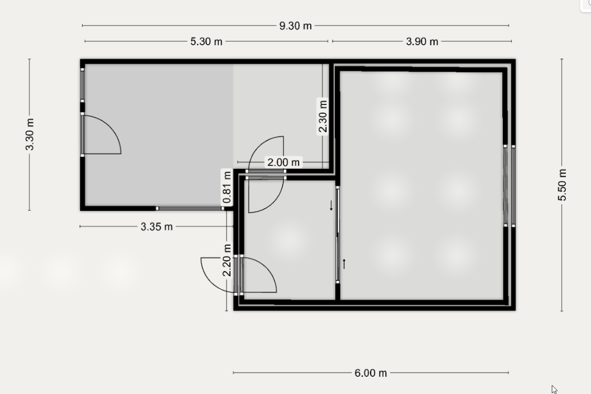
So if my room is 6x5.5m, with a 180mm air gap, 2.5m high walls and a pitched roof that is 1m high in the middle, I calculated I'll need about 7kgs of Silica gel. Does that sound excessive to you?
So if my room is 6x5.5m, with a 180mm air gap, 2.5m high walls and a pitched roof that is 1m high in the middle, I calculated I'll need about 7kgs of Silica gel. Does that sound excessive to you?
Ive Been Planning This Garage Studio for 10 Years!
yes, 7kgs seems like quite a lot. if you take the idea of using access panels to allow you to swap out the packs/cups, the start smaller and see how much moisture you're actually trapping before deciding to scale it up (or down). something like these will read-out the moisture collect (i.e. you'll see the excess liquid)
https://www.amazon.com/DampRid-Fresh-Re ... B07V3N6KKZ
https://www.amazon.com/DampRid-Fresh-Re ... B07V3N6KKZ
Ive Been Planning This Garage Studio for 10 Years!
OK, so I place a couple of these inside the actual wall cavity (not the window cavity) and build access panels so I can change them from time to time. Do you have any examples of how to build these panels so that I don't compromise my air-tight seal?
Ive Been Planning This Garage Studio for 10 Years!
I made an access hatch in a ceiling for changing air filters. There may be easier ways to achieve this, but it worked. I used 8 screws and a gasket to ensure it was airtight. Details here:
viewtopic.php?p=3833#p3833
viewtopic.php?p=3833#p3833
Website: https://www.jenclarkmusic.com/
Ive Been Planning This Garage Studio for 10 Years!
do a search for watertight access panels. look for heavy metal units. add a layer of rubber backing for the door just to ensure no resonating
-
eightamrock
- Full Member
- Posts: 166
- Joined: Thu, 2022-Jan-20, 13:47
- Location: Somerset County, New Jersey, USA..
Ive Been Planning This Garage Studio for 10 Years!
I would like to pile on here. From Rod's book, it states that there is little gain/loss from building the studios windows completely isolated from each other and that its OK to have one frame with a double window assembly.
In this case, the window is a sealed box, does that still need desiccant? I would imagine throwing a minimum in there doesnt hurt, but I wouldnt know how to make an access panel for it....
In this case, the window is a sealed box, does that still need desiccant? I would imagine throwing a minimum in there doesnt hurt, but I wouldnt know how to make an access panel for it....
Ive Been Planning This Garage Studio for 10 Years!
if it's a single frame (which i disagree with Rod on this, bridging isolation walls reduces the isolation. i watch Eric D. demo bridging an isolation booth @ Galaxy with a single 2x2 and that room went from 80+db isolation to ~40db -- so way more than half of the isolation was gone...), then conceptually you might be ok with the small amount of desiccant inside and not try the access panel, or build a small box under it or the side of it - open into the window space to capture moisture, and the access panel into that box.
Ive Been Planning This Garage Studio for 10 Years!
Thanks Jen, that's super helpful!endorka wrote:Source of the post I made an access hatch in a ceiling for changing air filters. There may be easier ways to achieve this, but it worked. I used 8 screws and a gasket to ensure it was airtight. Details here:
viewtopic.php?p=3833#p3833
From info Ive picked up in many threads, Im working on these rough guidelines for choosing my insulation:Soundman2020 wrote:Source of the post Also, you didn't' mention any insulation in the gap: that's important! Filling the entire cavity with suitable insulation greatly increases the isolation. The difference between an empty cavity and a full cavity can be as much as 20 dB in isolation, and 6 dB at the very least. Make sure your entire cavity is filled.
- Fill the cavity, but do not compress the insulation
- Lower density is better at attenuating low frequencies (12-16kg/m3)
- Gas Flow Resistivity is more important than R Value, however R13 generally indicates a suitably low GFR
Does that sound like Im on the right track, or have missed something critical here?
What Ive found locally here in Sydney is this Earthwool stuff - 11kg/m3 at a cost of about $6 AUD per m2.
https://www.bunnings.com.au/earthwool-1 ... lsrc=aw.ds
Any concerns with this meterial?
-
gearjunk1e
- Full Member
- Posts: 112
- Joined: Sun, 2021-Mar-07, 19:19
- Location: Orange Australia
Ive Been Planning This Garage Studio for 10 Years!
GraGra wrote:
What Ive found locally here in Sydney is this Earthwool stuff - 11kg/m3 at a cost of about $6 AUD per m2.
https://www.bunnings.com.au/earthwool-1 ... lsrc=aw.ds
Any concerns with this meterial?
Graeme
No issues - I used it in part. I did find that Bradford Gold which is almost the same density is a little easier to work with - just slightly stiffer and easier to cut.
Andrew
-
- Similar Topics
- Statistics
- Last post
-
-
Just Another Garage Studio Attachment(s)
by bradvuv » Sat, 2025-Aug-16, 01:40 » in RECORDING STUDIO DESIGN -
Replies: 6
Views: 128364 -
by bradvuv
View the latest post
Tue, 2025-Aug-19, 01:41
-
-
-
Big Beautiful Basement Studio
by micahmicahmicah » Tue, 2026-Feb-10, 17:55 » in RECORDING STUDIO DESIGN -
Replies: 3
Views: 7033 -
by Soundman2020
View the latest post
Tue, 2026-Mar-24, 22:00
-
-
-
Rebuilding My Studio on a Sloped Mezzanine: Advice and Suggestions Welcome Attachment(s)
by Coubz » Thu, 2025-Jul-03, 11:22 » in RECORDING STUDIO DESIGN -
Replies: 10
Views: 98445 -
by gullfo
View the latest post
Sat, 2025-Jul-12, 11:13
-
-
-
Rural Earth Wall Studio - Using Existing Slab
by trispembo » Tue, 2026-Jan-13, 00:22 » in RECORDING STUDIO DESIGN -
Replies: 0
Views: 3701 -
by trispembo
View the latest post
Tue, 2026-Jan-13, 00:22
-
Who is online
Users browsing this forum: No registered users and 22 guests