So, I'm looking at a design that would include an inside out ceiling. The ceiling is not all that high (about 7 1/2ft after the soft ceiling is in place). The room would be set up for stereo initially but I'd like to do some prewiring for future Atmos, without too much up front investment. After consulting the Dolby guide, I would expect to place all my speakers along the walls except for the 4 height speakers (I'm thinking 9.1.4).
So, the question. If I was able to find some passive height speakers, would it make sense to mount them flush in the soft ceiling? This is assuming there are no rear ports. Or does this create other issues? I know flush mounting the main speakers is fraught with complexity. Is it preferable to mount them on the ceiling itself?
I'm assuming a speaker with a cabinet here. I know they make standalone speakers that are meant to mount in a solid wall but it's hard to make those sound good as I understand it.
For reference the ceiling would be about 12in deep with 2" 703 and fluffy above that. So I would cut a hole in the 703 and fashion a mounting for the speaker, then possibly cover the whole thing with fabric. Again because the ceiling is low, I'm hesitant to install something that hangs down even more.
Thoughts on Atmos speakers in ceiling?
Thoughts on Atmos speakers in ceiling?
i would use some stiff metal screen to create a "bay" to keep the insulation off the speakers, but should be ok to mount in the joist space if the head room will be a problem. that said, mounting them on the joists with brackets may be easier overall. one of the things about surround mixing / mastering etc - i find most places prefer more like a "living space environment" but which has the critical listening balance.
Thoughts on Atmos speakers in ceiling?
Thanks. Of course it's also a bit risky to mount in the joist space if I ever decide to change speakers. But at least that's an option. I need to find some low profile height speakers.
Thoughts on Atmos speakers in ceiling?
the brackets can be mounted in the joist space. like i mentioned, a stiff wire mesh/screen could be used to shape the insulation and cloth around it so it's neat. could also be lumber as well although i would recommend maybe plywood dividers but cut openings so you benefit from the absorption on the sides of the cavity.
Thoughts on Atmos speakers in ceiling?
an example - using lumber to create dividers. but could be plywood with a hole saw to make openings. you could even fashion baffle plates to mask around the speaker - say 200% of the speaker LF driver - so a 6" LF driver = 12" x 2 - say 24" square. 3/4" MDF
- Attachments
-
- example speaker in ceiling joists0005.jpg (48.22 KiB) Viewed 20700 times
- example speaker in ceiling joists0005.jpg (48.22 KiB) Viewed 20700 times
-
- example speaker in ceiling joists0004.jpg (47.21 KiB) Viewed 20700 times
- example speaker in ceiling joists0004.jpg (47.21 KiB) Viewed 20700 times
-
StudioJiimaan
- Active Member
- Posts: 48
- Joined: Tue, 2022-Jan-04, 23:53
- Location: Toronto, CANADA
Thoughts on Atmos speakers in ceiling?
From Dolby website:
"What room dimensions are needed to mix content in Dolby Atmos for Home-Entertainment?
May 18, 2021
There is no hard and fast minimum room size to mix Dolby Atmos Home Entertainment content, but a certain distance to all loudspeaker should be maintained for a pleasant listening experience. We recommend the following minimal layout dimensions in the Dolby Atmos Home Entertainment Studio Technical Guidelines:
Minimum Layout Length: 3.5 meters (= distance from Center baffle to your back-surround line)\
Minimum Layout Width: 3.0 meters (= distance between you side-surround speakers).•\
Minimum LayoutHeight: 2.4 meters (= distance measured from the floor at mix position to the acoustic center of your overhead speakers)"
"What room dimensions are needed to mix content in Dolby Atmos for Home-Entertainment?
May 18, 2021
There is no hard and fast minimum room size to mix Dolby Atmos Home Entertainment content, but a certain distance to all loudspeaker should be maintained for a pleasant listening experience. We recommend the following minimal layout dimensions in the Dolby Atmos Home Entertainment Studio Technical Guidelines:
Minimum Layout Length: 3.5 meters (= distance from Center baffle to your back-surround line)\
Minimum Layout Width: 3.0 meters (= distance between you side-surround speakers).•\
Minimum LayoutHeight: 2.4 meters (= distance measured from the floor at mix position to the acoustic center of your overhead speakers)"
-
psb_87
- Active Member
- Posts: 34
- Joined: Thu, 2019-Dec-26, 21:41
- Location: Carmarthenshire, Wales, United Kingdom
Thoughts on Atmos speakers in ceiling?
I recently designed a fully Dolby Certified Atmos studio in which we did something very similar - the pre-existing building had some roof trusses with bottom chords that were in the way, so we built a "square wave" type ceiling - partially inside out, partially not, with the existing trusses weaving between the new inner ceiling structure - but all not touching and completely decoupled.
We did an equi-distant speaker layout, so in order to get the correct speaker angle and distance (2.4m from the floor) we used speaker alcoves instead of flush mounting, which allowed us to angle the speakers according to the Dolby specs.
You can see the studio here: https://www.sensoundaudio.com
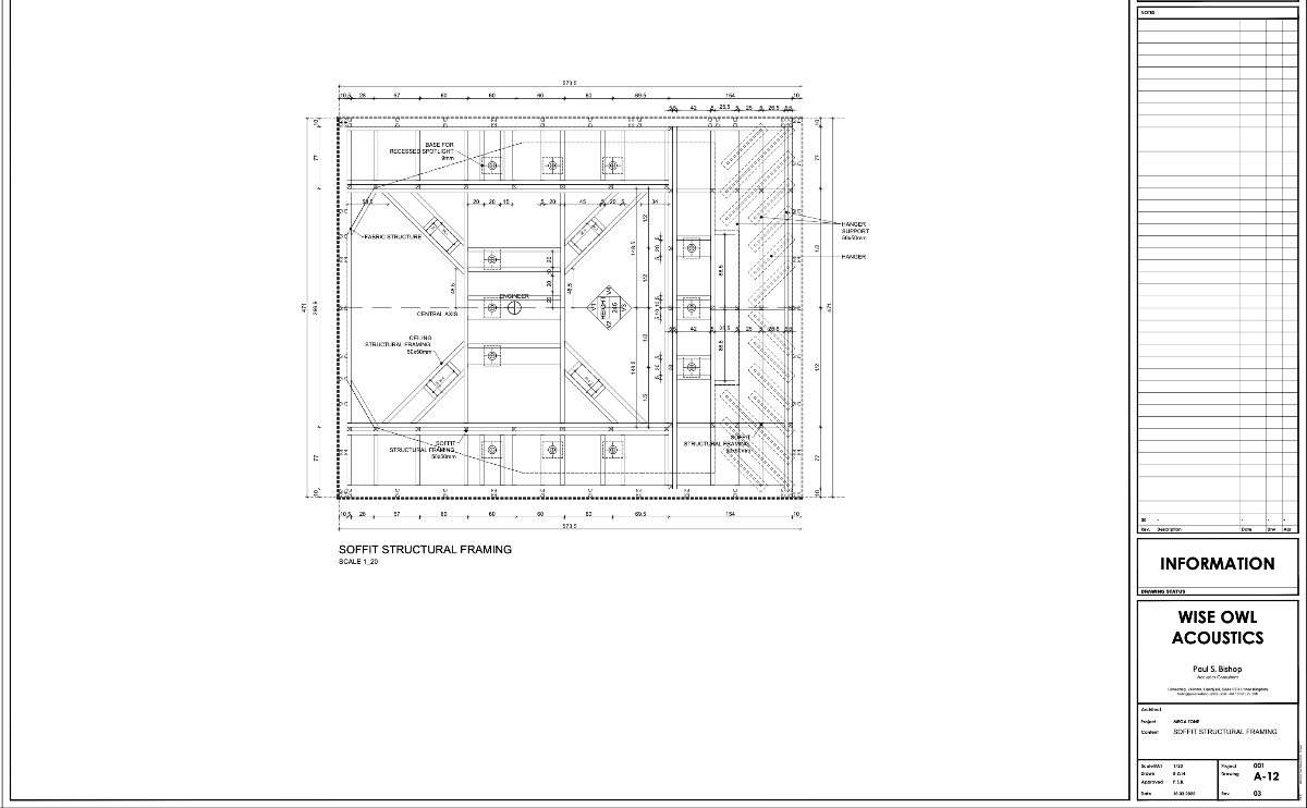
Here's some of the construction sheets showing a cross section of the joists assembly and the ceiling speaker alcoves.
We did an equi-distant speaker layout, so in order to get the correct speaker angle and distance (2.4m from the floor) we used speaker alcoves instead of flush mounting, which allowed us to angle the speakers according to the Dolby specs.
You can see the studio here: https://www.sensoundaudio.com
Here's some of the construction sheets showing a cross section of the joists assembly and the ceiling speaker alcoves.
Thoughts on Atmos speakers in ceiling?
nicely done Paul! i notice they only used one subwoofer - i'm assuming that it balanced ok 
-
psb_87
- Active Member
- Posts: 34
- Joined: Thu, 2019-Dec-26, 21:41
- Location: Carmarthenshire, Wales, United Kingdom
Thoughts on Atmos speakers in ceiling?
gullfo wrote:Source of the post nicely done Paul! i notice they only used one subwoofer - i'm assuming that it balanced ok
Thanks Glenn!
So far so good - the dolby engineer that calibrated the system was very impressed with the room and almost fell out of his chair when seeing the first set of measurements - he said he had never seen an atmos room with such a flat LF response - then again, maybe this was his first time measuring an atmos room
Paul
Who is online
Users browsing this forum: No registered users and 33 guests