Ive Been Planning This Garage Studio for 10 Years!

Start your own studio thread here: Goals, plans, layouts, treatment, speakers, questions, queries, comments...
GraGra
Active Member
Posts: 33
Joined: Wed, 2022-Sep-14, 21:17
Location: Sydney, Australia

Ive Been Planning This Garage Studio for 10 Years!

#1

Postby GraGra » Fri, 2023-Jun-30, 08:29

Hi folks, after a decade of dreaming and researching I am finally ready to build my dream home studio!
Most of what I've learned has come from John Sayers forum, Rod's book and here, so I'm humbled and excited to finally be posting here :yahoo:

The Brief -
The objective is to convert and extend an existing 36m2 timber-frame aluminium garage into a 44m2 multi-purpose personal studio for me and my wife.

The Recording Studio will operate as a rehearsal, recording and mix space for my own bands and productions after hours, and also my office during work hours. The Piano Studio will be used by my wife to offer piano lessons.

Our house is in a quiet residential suburb in Sydney, and the closest neighbour is 6m away.
As a drummer and muso who likes to play loud, I will need superior sound isolation to allow evening sessions without affecting the neighbours.
:shot: :jammin:

Design -
I will mostly be doing double duty as engineer and musician, so I prefer to perform, monitor and mix all within the same space. Having an option to isolate a musician occasionally would be a bonus.

My wife needs space to teach single students with their parents, or occasionally switch to group classes with 2-3 students.

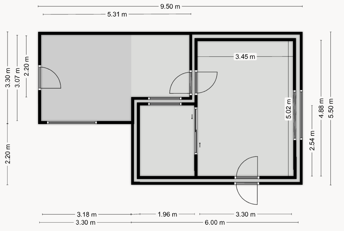
The existing garage slab is 6m x 5.5m, and the extension will be 3.3x3.3, so 44m2 all up.

For the layout, I addressed the critical need for a good sounding mix environment by creating a decently proportioned symmetrical Recording Studio along the shorter edge of the existing garage.
Acoustics in the Piano Studio are not as critical, so I then arranged my wife's pianos and furniture comfortably within the extension slab.
This left a 5 x 2m space in between, which I divided up into two useful area's - a small Booth for me, and a little extra space for my wife to place some chairs or a couch.

Recording Studio (acoustic dimension): 5.1 x 3.7m
Piano Studio : 3 x 5.3m (ish)
Booth : 2.7 x 2 m
Ceilings : 2.7m

I placed a main door directly into the Recording Studio, offset to one side so I can place a drum kit next to it, but leaving room in the corner for bass trapping. I considered placing the entrance into the Booth and using it as a kind if sound lock, but figured that would become annoying if a drum kit or other gear was set up in there. The Piano Studio door enters in the middle, and then we have a door between the two rooms, which also allows both of us to utilise each others studios when the need arises.

A large window in each Studio provides some natural light and a view.
We already have a guest bathroom with external access at the back of the main house which is just 2m away, so no need for that in the studio.

Floorplan 2023_06_29.png


Floorplan (Furniture) 2023_06_29.png


Construction -
My most critical need is to reduce the sound of loud drums (110db) to a neighbour friendly night time level (40db).
Allowing for an environmental level decrease of ~10db at the nearest neighbours, I will need a Transmission Loss within the structure of ~60db

Therefore I'll build a double stud wall with 25kg/sqm of mass on each leaf around the perimeter of the Recording Studio and Booth, and save some money on less critical areas by building a staggered stud wall around the perimeter of the Piano Studio and Internal Booth wall.

To save on floor space the interior wall will be built inside out, however two walls on either end of the Recording Studio will be built regular to avoid the length being exactly twice the height.

From outside to-inside the double stud walls look like this:
• 14mm James Hardie Fibre Cement Cladding (19kg/sqm)
• Green Glue
• 8mm Blue Board Fibre Cement (11kg/sqm)
• 70mm Studs (+Earthwool R1.8 insulation - 11kg/m3)

• 20mm Gap

• 16mm Fyrechek Drywall
• Green Glue
• 16mm Fyrechek Drywall
• 70mm Studs (+ insulation)
• Fabric Covering
• Total Thickness ~215mm


The window in the Recording Studio will be fixed panes of laminated glass 10 and 13mm thick.
In the Piano Studio we will have a sliding window made from 11mm glass.
The Booth will either have a heavy duty sliding glass door or a bifold door- Id prefer bi-fold so I can open it right out for extra space when just jamming, but not sure if I can source one that will also provide a decent level of isolation when closed.

I'm still trying to wrap my head around the HVAC calcs, but hoping to do a ducted mini split to cover both studios.
Given that the total volume of the building is 106m3, and I will have up to 6 people using it at any one time, I think I need a system with an Air Volume Rate of 500 CFM, and an Air Flow Rate of 60CFM.

I'm hiring a Builder to complete all construction on a budget of $150k AUD. Construction is super expensive right now, so I'll save money where I can by doing demolition, painting, flooring, cabinetry and acoustic treatment myself.

Issues -
The existing garage has joists at a height of 2.4m, and to meet approved development requirements I will need the final ceiling to be 2.4m, therefore I need to somehow raise the height of the existing roof. After talking with the builder, he concluded the effort required to modify the existing framework to lift the roof would be more expensive than demolishing the existing structure and building all new framework capped with a skillion roof. It seems such a waste, but at least it affords me the option of an even higher ceiling.

The DA also requires that I either have operable windows to allow for ventilation, or undergo another approval process to approve my HVAC plan, which would cost about $2k. I'm sure fixed pane windows would be best option for Transmission Loss, but not sure if its worth the extra expense. :?:


QUESTIONS -
▪ Is there another solution for achieving the required ceiling height?
▪ Is there a significant cost increase in building a ceiling inside out?
▪ For someone with only basic building skills, is demolishing a garage myself realistic?
▪ Are there operable windows available that would achieve the same or similar TL as two fixed panes of glass?
▪ Does my HVAC spec sound somewhere in the zone - Air Volume Rate :500CFM (236 L/s) and Air Flow Rate : 60CFM (28 L/S)
▪ Most manufacturers list either an Air Volume or Air Flow Rate in L/S, but never both. Have I misunderstood?
▪ It seems like units in the 6kw range are appropriate for my needs?
▪ Any idea's about a bi-fold vs sliding door for the Booth?
▪ Any other thoughts or concerns with my design?

Many Thanks! Graeme Walshe



User avatar
Soundman2020
Site Admin
Posts: 912
Joined: Thu, 2019-Sep-19, 22:58
Location: Santiago, Chile
Contact:

Ive Been Planning This Garage Studio for 10 Years!

#2

Postby Soundman2020 » Fri, 2023-Jun-30, 12:34

Hi there Graeme , and Welcome to the Forum! :thu: :)

Great first post! I'm going through it slowly, and I'll answer your questions shortly.

- Stuart -



User avatar
Soundman2020
Site Admin
Posts: 912
Joined: Thu, 2019-Sep-19, 22:58
Location: Santiago, Chile
Contact:

Ive Been Planning This Garage Studio for 10 Years!

#3

Postby Soundman2020 » Fri, 2023-Jun-30, 13:57

44m2 is a reasonable size, but any chance you can make it even bigger? More is pretty much always better for a studio.

The Recording Studio will operate as a rehearsal, recording and mix space for my own bands and productions after hours, and also my office during work hours. The Piano Studio will be used by my wife to offer piano lessons.
Might there ever be a connection? Such as the need to track and mix her piano sessions, or maybe use that room as an additional Live Room for some of your own sessions? If so, I'd suggest including windows between the various rooms, where possible. When I'm designing a studio for a client, I try to think of additional things that might be possible at some point, and make the studio as flexible as possible.

Our house is in a quiet residential suburb in Sydney, and the closest neighbour is 6m away.
As a drummer and muso who likes to play loud, I will need superior sound isolation to allow evening sessions without affecting the neighbours.
OK. Got it: Isolation is priority number one! On which side of your floor plan is your closest neighbor? Try to avoid having windows, doors, or HVAC inlets/outlets on that side of your studio, if possible.

The existing garage slab is 6m x 5.5m, and the extension will be 3.3x3.3, so 44m2 all up.
Can you mark on your layout the locations of the existing slab and new slab? I'm asking that because it occurs to be that it might be possible to have your rooms on individual isolated slabs, which allows you to maximize isolation between them. That might not be possible, of course, but it's worth considering.

For the layout, I addressed the critical need for a good sounding mix environment by creating a decently proportioned symmetrical Recording Studio along the shorter edge of the existing garage.
:thu: Basic layout looks good to me!

Recording Studio (acoustic dimension): 5.1 x 3.7m
That's nearly 19m2. Pretty decent. The specs for a "critical listening room" call for a floor area of 20m2 or more, but 19m2 is quite fine too. From your diagrams, those seem to be the final inner dimensions of the finished room? Have you considered doing those inner walls "inside out"? That could gain you another few cm of acoustic size on each side of the room (including height).

I placed a main door directly into the Recording Studio, offset to one side so I can place a drum kit next to it, but leaving room in the corner for bass trapping.
Looks good. Did you also try it with the door swinging the other way, towards the front of the control room? It might work out better for access, furniture, traffic. Not sure, but that's one of the things I always try out in the initial design stages: flip doors around, to see if it might help... or not!

Speaking of doors, is there any chance you can move the main exterior door into the control room to be more centered in the rear wall? That would help with symmetry and make it easier to design/build your rear wall treatment.

A large window in each Studio provides some natural light and a view.
:thu:

My most critical need is to reduce the sound of loud drums (110db) to a neighbour friendly night time level (40db).
Allowing for an environmental level decrease of ~10db at the nearest neighbours, I will need a Transmission Loss within the structure of ~60db
That is do-able, but its pretty much at the limit of what can be accomplished in a typical home studio. It requires careful design (especially with regards to doors, windows and HVAC), and careful construction, with lots of attention to detail. Your two new friends here are named "Mass" and "Seal". Actually "Major Mass" and "Hermetic Seal" :)

Therefore I'll build a double stud wall with 25kg/sqm of mass on each leaf around the perimeter of the Recording Studio and Booth, and save some money on less critical areas by building a staggered stud wall around the perimeter of the Piano Studio and Internal Booth wall.
For 60 dB isolation, I'd shoot for more mass on those leaves, and a larger air gap.

I'd also suggest using an initial sheet of 19mm OSB or MDF directly on the studs, then your other layers over that. The reason here is three-fold: Firstly, that base layer of OSB gives you a nailing surface all around the entire building, both inside and out. Very useful. Secondly, it greatly improves the structural integrity of the wall: it adds a lot of strength in sheer, which is something lacking in both drywall and fiber-cement board. Third, fiber-cement board is brittle, and not very forgiving of minor impacts. With that OSB backing behind it, it gives it better support and better chances of surviving a careless hammer blow during construction. Green Glue in between the OSB and Fiber-cement board would help even more in that aspect, as well as improving your isolation. It's not actually something that Green Glue has tested (as far as I know), so it's hard to say how much acoustic improvement you'd get, but it will certainly do something good.

Doing the above and increasing the cavity depth to 18cm, would lower your MSM resonant frequency to around 24 Hz, and give you theoretical isolation of a tad over 55 dB. That's pretty good for a home studio. Yes, it makes your rooms a little smaller, but since isolation is the priority, it's worth considering.

Without the extra mass (using your current plan), your MSM resonance is at 41 Hz, and good isolation only starts at about 82 Hz. Kick drums usually come in somewhere around 70-85 Hz fundamental (depending on size and tuning), so your "thump thump" is likely going to get through a bit to the neighbors. Ditto bass guitars (a six string bass goes down to around 31 Hz).

GraGra wrote:Source of the post • 16mm Fyrechek Drywall
• Green Glue
• 16mm Fyrechek Drywall
• 70mm Studs (+ insulation)
• Fabric Covering
Based on that, it seems that you are considering inside-out construction? That's great, but it also implies that you'll need an even larger cavity depth to get the isolation that you need.

• 20mm Gap
That refers to the gap between the outer-leaf stud frame and the start of the inner-leaf drywall, correct? If so, that only gives you 70mm + 20mm = 90mm for your cavity. Not so good, for high isolation. Or rather, it doesn't change the overall isolation LEVEL by too much (only drops a couple of dB), but it does greatly change the MSM resonant frequency.

Increasing your cavity depth to 170mm, and adding the extra mass, you get the numbers I mentioned before.

Also, you didn't' mention any insulation in the gap: that's important! Filling the entire cavity with suitable insulation greatly increases the isolation. The difference between an empty cavity and a full cavity can be as much as 20 dB in isolation, and 6 dB at the very least. Make sure your entire cavity is filled.

The Booth will either have a heavy duty sliding glass door or a bifold door- Id prefer bi-fold so I can open it right out for extra space when just jamming, but not sure if I can source one that will also provide a decent level of isolation when closed.
Not really. Bi-fold doors give you very little isolation. I'd go with using sliding glass doors on the booth. Something like this:
CR-Booth-Sliders-SML-ENH.jpg
That gives you excellent sight lines, good access, and reasonably good isolation too. Those are just typical Home Depot type patio doors. We put those in originally as a temporary measure, until the client could order his final acoustic sliders, but in the end he kept these ones as they did a really good job. Enough for what he needed. Which included this:
IMG_1283 copy-Drums-in-booth-from-side-MID-ENH-SML.jpg
I didn't actually design the booth to be used regularly for drums, but he managed to get a decent sized kit in there, and he tells me it worked very well. His place is not too far from you, actually: Lismore (OK, not exactly next door!). Since these are internal doors (not facing the outside world), you can probably get away with a little less isolation. Your need is for major isolation to the outside world, so you could save money like this, by going with less effective but less expensive "ordinary" doors for internals, rather than acoustic sliders which are pretty pricey.

The window in the Recording Studio will be fixed panes of laminated glass 10 and 13mm thick.
How deep is the gap between them?

I'm still trying to wrap my head around the HVAC calcs, but hoping to do a ducted mini split to cover both studios.
That would probably work fine, but have you also considered including your wife's piano room? She might not be too happy when you have a wonderfully cooled, dry studio, and she's sweating in Sydney heat! Adding a bit extra HVAC ducting and silencers to include that other room probably wouldn't be a huge thing, since you'd have most of what you need already for the studio. Worth considering!
I'm hiring a Builder to complete all construction on a budget of $150k AUD.
Does the builder have any experience with building recording studios? If not, he's going to need constant supervision and careful instruction before-hand, since a lot of the typical methods and "short cuts" that he normally uses, cannot be done in your place. He likely isn't aware of the extreme need to keep the two leaves entirely separate, without so much as a single nail joining them, nor is he aware of the need for extreme care in sealing everything, twice over. Typical house construction does not need that, so he won't be used to it if he hasn't done studios before. But both of those are critical to achieving your high isolation goals. Even a tiny crack under a wall or around a window can cost you many, many dB of isolation. Basically, if air can get through, then so can sound. You might want to go around the entire build every evening, after he leaves, and re-seal all the spots he missed, yourself. And check for inadvertent flanking paths, too.
to meet approved development requirements I will need the final ceiling to be 2.4m
I didn't know that Australian approved-development rules set the ceiling height. That's unusual. In the UK, they only set the height of the roof, measured at the eaves and peak, but the inner ceiling height can be whatever you want it to be. Some of the studios I have designed for the UK, we actually dug down many cm to get the floor a lot lower, so the ceiling height could be high without violating the roof and eave height regulations. I'm surprised that Australia sets the ceiling height. Unexpected. I also noted that you have 2.7 m ceiling height on the table of room dimensions, but it seems that was an error and should have been 2.4m, if that's the limit that rules allow.

After talking with the builder, he concluded the effort required to modify the existing framework to lift the roof
What type of roof trusses do you have up there? It might be possible to just modify the trusses in-place, without needing to raise the entire roof.
It seems such a waste, but at least it affords me the option of an even higher ceiling.
Now I'm confused! You said that your regulations require a ceiling height of 2.4m, so how can you go higher than that? Maybe you could publish the actual applicable regulations here, or provide a link: there might be ways to do what you want that still comply with the regs.

The DA also requires that I either have operable windows to allow for ventilation, or undergo another approval process to approve my HVAC plan, which would cost about $2k. I'm sure fixed pane windows would be best option for Transmission Loss, but not sure if its worth the extra expense
Do ALL of the windows have to be operable? Sometimes they only specify that, for example, 50% of the total widow area in the building must be operable. In that case, make the windows in the piano room bigger and operable, and the windows in your studio smaller and fixed.

Worst case, you can buy operable acoustic windows for studios, but they are pricey!

▪ Is there another solution for achieving the required ceiling height?
Maybe, but I'm confused about what your regulations actually say. In one place you said that they require 2.4m ceiling height, so it seems that they don't allow higher ceilings under this regulation?

▪ Is there a significant cost increase in building a ceiling inside out?
slightly higher cost in materials, yes, but mostly it's just the increased complexity of building like that.

▪ For someone with only basic building skills, is demolishing a garage myself realistic?
It's possible, yes, but a hell of a lot of work, and you might also need certification to do that. Check your insurance, too. You might not be covered for personal injury and third-party damages, if you do it yourself.

▪ Are there operable windows available that would achieve the same or similar TL as two fixed panes of glass?
Yes, but not cheap. You could also build them yourself, but that requires some skills and tools that you might not have.

▪ Does my HVAC spec sound somewhere in the zone - Air Volume Rate :500CFM (236 L/s) and Air Flow Rate : 60CFM (28 L/S)
I didn't do the math, but something seems off there.

▪ Most manufacturers list either an Air Volume or Air Flow Rate in L/S, but never both. Have I misunderstood?
Perhaps! :)

▪ It seems like units in the 6kw range are appropriate for my needs?
Heating/cooling is usually specified in btu/hr, or even "tons". It might be different in Australia. Do you have a link to the AHU units you a re thinking of?

▪ Any idea's about a bi-fold vs sliding door for the Booth?
Answered above.

▪ Any other thoughts or concerns with my design?
Yup! But I'm out of time right now, and it would be better to get these basics resolved first....

- Stuart -



GraGra
Active Member
Posts: 33
Joined: Wed, 2022-Sep-14, 21:17
Location: Sydney, Australia

Ive Been Planning This Garage Studio for 10 Years!

#4

Postby GraGra » Wed, 2023-Jul-05, 07:13

Thanks so much for the detailed response Stuart. You've given me a few things to weigh up there, so I'll take a moment to consider and come back with a revision.



GraGra
Active Member
Posts: 33
Joined: Wed, 2022-Sep-14, 21:17
Location: Sydney, Australia

Ive Been Planning This Garage Studio for 10 Years!

#5

Postby GraGra » Wed, 2023-Jul-19, 08:09

Hi Stuart, thanks for your input. I took some time to address some your concerns:

Soundman2020 wrote:Source of the post 44m2 is a reasonable size, but any chance you can make it even bigger? More is pretty much always better for a studio.


The size of the extension is limited by proximity to the existing house, so I cannot increase the footprint there. I could extend the existing slab backwards further into garden, but my budget is already stretched so I'm really not too keen on that.

Soundman2020 wrote:Source of the post Might there ever be a connection? Such as the need to track and mix her piano sessions, or maybe use that room as an additional Live Room for some of your own sessions? If so, I'd suggest including windows between the various rooms, where possible.


Good call! I've added a window between Piano Studio/Booth and will also include a window in the door between Piano/Recording Studio.

Soundman2020 wrote:Source of the post On which side of your floor plan is your closest neighbor? Try to avoid having windows, doors, or HVAC inlets/outlets on that side of your studio, if possible.

The neighbours are to the East along the long wall, hence no windows or doors there. I'll make sure not to put vents there either, thanks!

Soundman2020 wrote:Source of the post Can you mark on your layout the locations of the existing slab and new slab? I'm asking that because it occurs to be that it might be possible to have your rooms on individual isolated slabs, which allows you to maximize isolation between them.


The existing Slab is marked with a red box, so the Piano Studio will straddle both slabs, while Recording Studio and booth sit within the existing slab.
new slab.jpg


Soundman2020 wrote:Source of the post Did you also try it with the door swinging the other way, towards the front of the control room? It might work out better for access, furniture, traffic.

Soundman2020 wrote:Source of the post Speaking of doors, is there any chance you can move the main exterior door into the control room to be more centered in the rear wall? That would help with symmetry and make it easier to design/build your rear wall treatment.


Good call! When we renovated our house recently that was my biggest mistake - doors opening into awkward spaces. So I flipped the swing of Piano/Recording door to give better access. But then I became concerned that it will bash into the outboard rack and limit my options when setting up the workstation, so I swapped it for sliding glass doors instead. However then I thought that all that glass will play havoc with reflections in the listening position, so I swapped it back to swinging doors and resolved to work around it when positioning the furniture.

I also moved the main entrance door into the centre of the wall, however I'm concerned that it will now be difficult to fit drums, keyboards etc in that 1.2m space either side if the door. It seems like I'm now trading off acoustics for functionailty, and I'm feeling a bit stuck here...


Furniture Plan 2023_07_05.png


Soundman2020 wrote:Source of the post I'd also suggest using an initial sheet of 19mm OSB or MDF directly on the studs, then your other layers over that. The reason here is three-fold: Firstly, that base layer of OSB gives you a nailing surface all around the entire building, both inside and out. Very useful. Secondly, it greatly improves the structural integrity of the wall: it adds a lot of strength in sheer, which is something lacking in both drywall and fiber-cement board. Third, fiber-cement board is brittle, and not very forgiving of minor impacts. With that OSB backing behind it, it gives it better support and better chances of surviving a careless hammer blow during construction.


Ok, so this interesting, Ive not really come across this advice before.
Do you mean to add the layer of OSB directly to the studs on both inner and outer leaves?

Soundman2020 wrote:Source of the post That refers to the gap between the outer-leaf stud frame and the start of the inner-leaf drywall, correct? If so, that only gives you 70mm + 20mm = 90mm for your cavity. Not so good, for high isolation. Or rather, it doesn't change the overall isolation LEVEL by too much (only drops a couple of dB), but it does greatly change the MSM resonant frequency.

Increasing your cavity depth to 170mm, and adding the extra mass, you get the numbers I mentioned before.


Ive, amended the layout to accommodate an increased 100mm gap between stud and inner leaf, giving total airgap of 170mm. This has made the Booth and Couch area a bit squashier than I'd like, but still useable I think. I also added insulation to the entire cavity.

So from outside to-inside, this is what my walls now look like:
• 14mm James Hardie Fibre Cement Cladding (19kg/sqm)
• Green Glue
• 8mm Blue Board Fibre Cement (11kg/sqm)
• 6mm OSB (4kg/sqm)
• 70mm Studs (+Earthwool R1.8 insulation - 11kg/m3)

• 100mm Gap (+insulation)

• 16mm Fyrechek Drywall (12.5kg/sqm)
• Green Glue
• 16mm Fyrechek Drywall (12.5kg/sqm)
• 6mm OSB (4kg/sqm)
• 70mm Studs (+ insulation)
• Fabric Covering

• Total Thickness ~306mm
• Total Airgap 170mm
• Total Mass ~63kg/sqm

Floorplan 2023_07_05.png


Soundman2020 wrote:Source of the post Now I'm confused! You said that your regulations require a ceiling height of 2.4m, so how can you go higher than that?


Sorry! To clarify, the regulation for ceiling height is a minimum of 2.4m. I'm not sure if there's a maximum height limit, but 2.7m will be acceptable. Here's the latest Australian Building Code for reference.
https://ncc.abcb.gov.au/editions/ncc-20 ... om-heights

OK, well there's still a few more issues to address but I'll leave have to it here for now. Thanks!



GraGra
Active Member
Posts: 33
Joined: Wed, 2022-Sep-14, 21:17
Location: Sydney, Australia

Ive Been Planning This Garage Studio for 10 Years!

#6

Postby GraGra » Sun, 2023-Jul-23, 23:05

I'm off work this week so have some time to work on the studio design! :yahoo:

Soundman2020 wrote:Source of the post Bi-fold doors give you very little isolation. I'd go with using sliding glass doors on the booth. Something like this:

Done! I'll stick with regular glass sliders, that's a great help thanks!

Soundman2020 wrote:Source of the post How deep is the gap between them?


The Recording Studio window will be a fixed pane of glass in each wall leaf. So the gap will be approximately the same as the airgap of the wall ~170mm



Soundman2020 wrote:Source of the post Does the builder have any experience with building recording studios? If not, he's going to need constant supervision and careful instruction before-hand, since a lot of the typical methods and "short cuts" that he normally uses, cannot be done in your place. He likely isn't aware of the extreme need to keep the two leaves entirely separate, without so much as a single nail joining them, nor is he aware of the need for extreme care in sealing everything, twice over. Typical house construction does not need that, so he won't be used to it if he hasn't done studios before. But both of those are critical to achieving your high isolation goals. Even a tiny crack under a wall or around a window can cost you many, many dB of isolation. Basically, if air can get through, then so can sound. You might want to go around the entire build every evening, after he leaves, and re-seal all the spots he missed, yourself. And check for inadvertent flanking paths, too.


The builder has no experience actually building a studio, however I chose him for two reasons:
  • After talking to many builders, he was the only one who was at least familiar with the concepts of flanking and MSM, and seems to have a genuine interest in learning more about the technique.
  • He works on a cost plus basis, and is happy for me to get involved wherever I feel I can. So there's no incentive for him to cut corners as he just bills me for time and meterials. The scary part here is that I have to manage the job very closely otherwise it will blow out. I intend to do most of the sealing myself anyway, to ensure its done thoroughly and save some labour cost.

Soundman2020 wrote:Source of the post What type of roof trusses do you have up there? It might be possible to just modify the trusses in-place, without needing to raise the entire roof.


Here's a shot of the existing roof structure. We did talk about moving the joists up about 20cm, but he was concerned the walls might bow.
We also talked about taking the existing roof off, adding 20-30cm to the walls and then putting the roof back on. However that would result in additional work needed to replace every second stud so they ran the full vertical height of the wall for strength, and by then it just became more economical to rip it all down and start from scratch.
I wonder if the added OSB might help give the walls the strength they need?
Perhaps I should be talking to a structural engineer about this point?

Existing Roof Structure.jpg


Soundman2020 wrote:Source of the post That would probably work fine, but have you also considered including your wife's piano room? She might not be too happy when you have a wonderfully cooled, dry studio, and she's sweating in Sydney heat! Adding a bit extra HVAC ducting and silencers to include that other room probably wouldn't be a huge thing, since you'd have most of what you need already for the studio. Worth considering!


Yes, absolutely! Aircon ducting will go to her studio as well. :D


Soundman2020 wrote:Source of the post Do ALL of the windows have to be operable? Sometimes they only specify that, for example, 50% of the total widow area in the building must be operable. In that case, make the windows in the piano room bigger and operable, and the windows in your studio smaller and fixed.


I checked the ventilation regulations - a room must have an operable window at least 5% of the total floor area, and any adjoining rooms can "borrow" that ventilation if they have a doorway not less than 5% of the adjoining rooms floor area.
My new total floor area is 35sqm, so I simply require a window minimum 1.8sqm, and doorways to be 1.8m2 as well. I checked with my certifier and he has said this will be fine. Yay!
Heres the relevant regulation:
https://ncc.abcb.gov.au/editions/ncc-20 ... entilation

For the rest of today I will dive into the dreaded HVAC calculations.
Wish me luck! :shock: :lol:

----

SUMMARY OF QUESTIONS

[*]How critical is having my door centered on the rear wall of the main studio? I'm OK to make a small trade off in critical listening acoustics if it means the room is significantly more functional for tracking in. But if its going to make mixing difficult then I'll go for symmetry and work around the awkward door positioning.

[*] Do you mean to add the layer of OSB directly to the studs on both inner and outer leaves?
[*] Would the OSB give the walls enough strength to accomodate a 20-30cm extension without replacing studs?
[*] Is there a more economical option for achieving the minimum cieling height of 2.4m, without having to pull down the entire structure?



User avatar
Soundman2020
Site Admin
Posts: 912
Joined: Thu, 2019-Sep-19, 22:58
Location: Santiago, Chile
Contact:

Ive Been Planning This Garage Studio for 10 Years!

#7

Postby Soundman2020 » Mon, 2023-Jul-24, 01:05

Done! I'll stick with regular glass sliders, that's a great help thanks!
:thu: Do make sure the sliders you buy have good seals on them! Get the type meant for external patio doors: they usually have better rubber seals on them, to prevent water/wind from getting in. Seals are important for acoustic isolation!

The Recording Studio window will be a fixed pane of glass in each wall leaf. So the gap will be approximately the same as the airgap of the wall ~170mm
You can maximize that gap by moving the windows as far out to the extremes as possible. Not sure if you saw this thread? : site built windows for high isolation

The builder has no experience actually building a studio, however I chose him for two reasons:
Good plan!

Here's a shot of the existing roof structure. We did talk about moving the joists up about 20cm, but he was concerned the walls might bow.
You might find this post interesting...
viewtopic.php?p=68#p68
Those are "raised collar ties". The original ceiling truss was too low for what the client wanted, so we moved them up. But see below! :..

Perhaps I should be talking to a structural engineer about this point?
Very, very definitely! Any time you are dealing with load-bearing structures, get an expert in to tell you what you can and cannot do. The post I linked above, we did that. We explained to the engineer what we wanted, he looked at it, and told us what we could do, how to do it, and what dimensions to use for the lumber. I then designed it, he approved it, and the client hired a contractor to build it.

I wonder if the added OSB might help give the walls the strength they need?
OSB strengthens the walls mostly in "sheer". In other words, along the plane of the wall (resisting forces trying to make it collapse along its own length, towards one end of the other). Very important, in structural walls! It probably doesn't add much to the vertical load-bearing capacity (some, but not a huge amount), but it does greatly improve sheer.

My new total floor area is 35sqm, so I simply require a window minimum 1.8sqm, and doorways to be 1.8m2 as well. I checked with my certifier and he has said this will be fine. Yay!
Cool! That's good news! If your inspector is happy with that, then that's excellent! Problem solved.

[*]How critical is having my door centered on the rear wall of the main studio? I'm OK to make a small trade off in critical listening acoustics if it means the room is significantly more functional for tracking in. But if its going to make mixing difficult then I'll go for symmetry and work around the awkward door positioning.
Good question! Difficult answer... :)
In a control room, symmetry is critical at the front of the room, between your head and the speakers. Not so critical behind your head (but still nice to have if you can). So from that point of view, you don't really need to have the door centered.

That said, it's a lot easier to build your rear corner bass traps is they are the same. Just do one and mirror-image the other. Makes calculating, cutting, constructing easier. You might find it hard to make the trap big enough for maximum effect on the side where the door is closer to the wall.

It also gives better symmetry if you need to put reflective / diffusive surfaces back there for any reason.

And there's also the aesthetic issue: It might just look weird if the rear end of your room is "wonky" or "lopsided", with the door off to one side.

[*] Do you mean to add the layer of OSB directly to the studs on both inner and outer leaves?
If you can, then yes. If the outer-leaf is already fully built, then maybe not worth it to take off the siding and add the OSB under it, but if you are going to be building the walls from scratch, then that extra mass and "sheer strengthener" is a really good idea. Put your water barrier (eg: Tyvek) over the OSB, then your siding. Put the vapor barrier wherever your local building code says you have to put it. Usually in the warmer leaf.

[*] Would the OSB give the walls enough strength to accomodate a 20-30cm extension without replacing studs?
Not really, no. Your studs have to run all the way from the sole plate to the top plate. The sole plate rests on the slab, and the top plate is at the top of the wall, with the joists resting directly on it. The truss resists the spreading forces from the weight of the roof, and there are several different truss designs where the cross members do not run straight across from one wall to the other (giving you more ceiling height) but still resist the spreading forces that would otherwise push your wall tops outwards. Collar-tie and scissor trusses are two common ones. But as I mentioned above, do get a structural engineer involved! He'll do the math and tell you what is safe, and what isn't.

[*] Is there a more economical option for achieving the minimum cieling height of 2.4m, without having to pull down the entire structure?
Collar-tie trusses! (Also called "raised tie") :) Or scissor. Or a few others. Here's just some examples:
trusstypes.jpg
TrussTypes1-s-2.jpg
There are many others.

And an example of how much extra space you can get from that:

BEFORE:
collar-tie-truss-modification-ORIGINAL-CONDITION.JPG


AFTER:
collar-tie-truss-modification-FINAL-CONDITION.JPG



- Stuart -



User avatar
gullfo
Senior Member
Posts: 782
Joined: Fri, 2021-Jun-25, 14:50
Location: Panama City Beach, FL USA

Ive Been Planning This Garage Studio for 10 Years!

#8

Postby gullfo » Mon, 2023-Jul-24, 09:08

one thought to check - make the outer walls block instead of framed. right, as you were then.



GraGra
Active Member
Posts: 33
Joined: Wed, 2022-Sep-14, 21:17
Location: Sydney, Australia

Ive Been Planning This Garage Studio for 10 Years!

#9

Postby GraGra » Tue, 2023-Jul-25, 03:47

OK thats super helpful! I'll talk with the builder and engage an engineer about the raised collar ties.
I'll also need to check with the certifier to make sure it meets regulation, as there would be a small section of the sloped ceiling around the perimeter that dips below 2.4m, but on the whole it seems like it should be OK. Thanks!


HVAC
I have re-read the HVAC explanation (many times!) and re-done all calcs, and I think I understand now.

The total Volume of all three spaces in the studio is 95m3.
To change all that air 6-8 times per hour, I need to circulate 160-210 litres per second.
To do that I'll need a unit rated at about 1500 BtU, or 4-5 Kw.

Given that I may have up to 9 people in the facility at any one time, I also need about 45 litres per second of fresh air coming in and stale air going out. And to move that amount air at a speed that is not too noisy, my air path through the ducts needs to be .05m2 , or 22.5cm x 22.5cm.

Design-wise, I seem to have two main options:
1. Install three separate wall-mounted AHUs connected to a single or multiple outdoor compressors, and also install separate ventilation duct-work with silencer boxes where it penetrates each leaf.
2. Install a single AHU mounted in the roof space (connected to single outdoor compressor), and utilise the ventilation ductwork to get the air in and out of each room.

I'm generalising of course, and there's surely extra detail and fine tuning needed here, but does that sound like its in the zone now?

Many Thanks, Graeme



User avatar
gullfo
Senior Member
Posts: 782
Joined: Fri, 2021-Jun-25, 14:50
Location: Panama City Beach, FL USA

Ive Been Planning This Garage Studio for 10 Years!

#10

Postby gullfo » Tue, 2023-Jul-25, 08:37

GraGra wrote:Source of the post... Design-wise, I seem to have two main options:
1. Install three separate wall-mounted AHUs connected to a single or multiple outdoor compressors, and also install separate ventilation duct-work with silencer boxes where it penetrates each leaf.
2. Install a single AHU mounted in the roof space (connected to single outdoor compressor), and utilise the ventilation ductwork to get the air in and out of each room.
I'm generalising of course, and there's surely extra detail and fine tuning needed here, but does that sound like its in the zone now?


yes :-) also consider that the air exchange is 100% on while occupied. so consider variable speed compressor and air handler as you can get reduced duct speeds while still providing enough air and cooling etc. using a ERV/HRV to manage the air exchange helps improve efficiency and adds a filtering layer.

generally speaking, for a set of rooms and 9 people, you'd probably want more like a 24K BTU capacity. and about 10m3/min air flow with 35% fresh air (3.5m3/min) from your HRV/ERV unit. if your ducts are say 30x30cm then you're going to have roughly 110m/per minute velocity (or 1.83m/sec). ideally you'd want to get to 1/2 that in the final vent velocity - so once in the room, use plenums in your ceiling soffits to expand that.



GraGra
Active Member
Posts: 33
Joined: Wed, 2022-Sep-14, 21:17
Location: Sydney, Australia

Ive Been Planning This Garage Studio for 10 Years!

#11

Postby GraGra » Wed, 2023-Jul-26, 19:33

gullfo wrote:Source of the post one thought to check - make the outer walls block instead of framed. right, as you were then.


Hi Glenn, thanks for the input!
I am squeezing every drop out of my budget for this build, so I chose wood frame over concrete block simply due to the cost.

Interestingly, my brother has been trying to convince me to use air-crete, which is basically a cheap DIY concrete block formed by mixing concrete with detergent or some other gassy agent. The detergent leaves air bubbles in the concrete resulting a strong lightweight block with improved thermal and acoustic properties. However there's no hard evidence to support those claims, so I'm sticking to the tried and true advice given here!



GraGra
Active Member
Posts: 33
Joined: Wed, 2022-Sep-14, 21:17
Location: Sydney, Australia

Ive Been Planning This Garage Studio for 10 Years!

#12

Postby GraGra » Wed, 2023-Jul-26, 19:55

gullfo wrote:Source of the post using a ERV/HRV to manage the air exchange helps improve efficiency and adds a filtering layer.


Thanks again Glenn!
Do you think an HRV would be a more of a necessity or a luxury for Sydney? Our climate is warm and temperate, with a similar temperature range to LA, and about 10 degrees Fahrenheit cooler than in Florida.



GraGra
Active Member
Posts: 33
Joined: Wed, 2022-Sep-14, 21:17
Location: Sydney, Australia

Ive Been Planning This Garage Studio for 10 Years!

#13

Postby GraGra » Wed, 2023-Jul-26, 19:59

Climate Sydney.png

Climate LA.png

Climate Florida.png



User avatar
gullfo
Senior Member
Posts: 782
Joined: Fri, 2021-Jun-25, 14:50
Location: Panama City Beach, FL USA

Ive Been Planning This Garage Studio for 10 Years!

#14

Postby gullfo » Wed, 2023-Jul-26, 20:19

the thing is: you're building a sealed, hyper-insulated space with people and electronics - it's going to get warm - so you're going to spend money cooling it. the ERV / HRV can help stabilise the temperature between your cooled space and the outside air, enforce the fresh air exchange, plus filter inbound air. you could try just fans to do the air exchange but i think long term and continuous running etc the HRV / ERV is the right way to go.



eightamrock
Full Member
Posts: 166
Joined: Thu, 2022-Jan-20, 13:47
Location: Somerset County, New Jersey, USA..

Ive Been Planning This Garage Studio for 10 Years!

#15

Postby eightamrock » Fri, 2023-Jul-28, 11:42

gullfo wrote:the thing is: you're building a sealed, hyper-insulated space with people and electronics - it's going to get warm - so you're going to spend money cooling it. the ERV / HRV can help stabilise the temperature between your cooled space and the outside air, enforce the fresh air exchange, plus filter inbound air. you could try just fans to do the air exchange but i think long term and continuous running etc the HRV / ERV is the right way to go.


FWIW, I am inbetween climate zone 5 and 6 in NJ which is considered humid subtropical. I asked over a dozen HVAC specialists in my area about their experience between ERV and HRV's in our climate. They almost unanimously agreed that ERV's in our area worked better than HRV's. They said you really want to be in a primarily colder climate with significantly harsher winters (average sub zero temps for more than a month) for HRV's to be the most effective.

So as Glenn indicated you want air so you need to have something in a hermetically sealed room to bring fresh air in. If you are torn between HRV or ERV, based on your climate I would say ERV.




  • Similar Topics
    Statistics
    Last post

Who is online

Users browsing this forum: No registered users and 165 guests