New Studio Build Underway
- howiedrum
- Active Member
- Posts: 97
- Joined: Sun, 2019-Oct-06, 13:57
- Location: Mckinleyville, California U.S.A.
New Studio Build Underway
Hi Everyone. Thanks to Soundman (Stuart) for starting this forum and for all the information and help he has given me over the last two years! The plot has been cleared, the foundation prepped, and the concrete slab was just poured! The dream of having my own studio is becoming a reality. Below is some information leading up to this post. I will be posting a photo diary documenting the process.
I am a percussionist and music teacher on the north coast of California. Two and a half years ago I began my journey into the world of studio building after reading Rod G’s book. Then I subscribed to a couple of studio building forums and met Stuart online, who set me straight on practically every aspect of studio building.
The space I am having built is a practice/band rehearsal room and a place I can teach one on one and group percussion classes. I am not a recording engineer, nor do I wish to become one. I am interested in composing and arranging and I would like to record my personal projects, but I am not interested in engineering or producing someone else’s project.
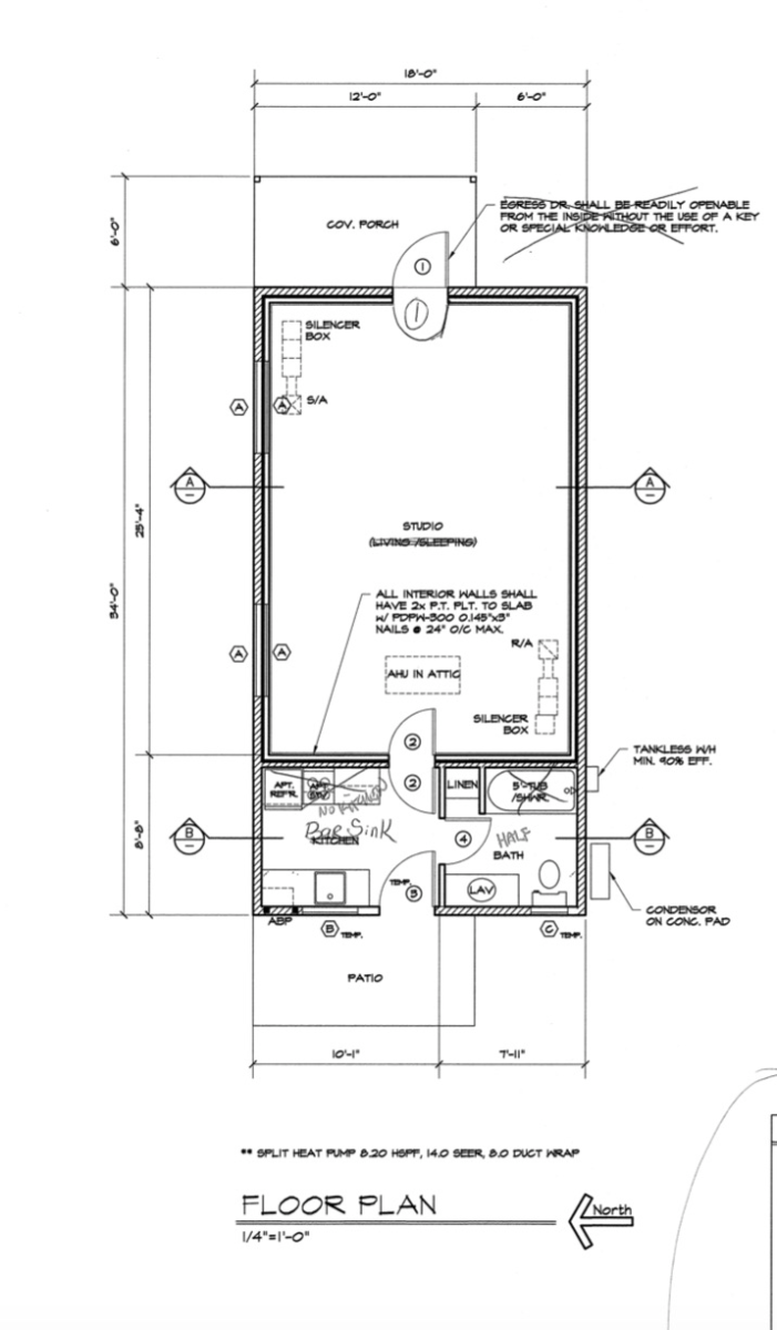
I started my research into acoustics and studio building in April of 2017 with a goal of September 2018 to complete the building. Work and family business forced me to take some breaks from researching. In March of 2018 I began again in earnest. Stuart set me straight about not guessing about anything and doing the math and relying on tested information instead of conjecture. With his help and other forum contributors, I worked and reworked my plan. I started working with sketchup but didn't get too far. So I hired a draftsperson to draw up plans to submit to the building department. Original plan was a 25'x18'x11'-2" one room studio with a separate 6x18x12' room with a bathroom, a kitchen sink, and "storage" which would be set up for a small refrigerator and stove after completion. Studio portion would be a Room within a room double-stud wall construction with 3/4" OSB and 5/8 drywall on inside and two sheets of 3/4 OSB on outside with Green Glue in between and a 1" gap all around on a concrete foundation. The roof had to be vented, so the middle leaf would be the "real" outer ceiling and the inner leaf would be the studio inside-out ceiling. I would use a vented mini split for heating/cooling.
In June of 2018, I hired Stuart to design the HVAC for the studio. I gave it my all but my then 54 year old brain started to short-circuit so I threw out my own HVAC plan for a professional one.
My acoustic isolation goal was to achieve close to 63dbc with a minimum of 48dbc reduction. My wife has a botanical garden 12 feet from my north wall, which is her haven, so that is the reason for wanting that much of a reduction. I want to be able to play and not bother her. My closest neighbor's front door is 90 feet away and he said that a band rehearsing wouldn't bother him. So he is cool with it. My house back deck and door are 100ft away and my wife's school room is 150ft away. Given my design, Stuart said 63dbc will be tough. We hope to achieve a 60 dbc reduction but it will probably be more like a 55 dbc reduction. If I can achieve this, then when my six-piece Salsa band peaks at 118dbc, anyone outside will only hear 63 db.
Here is a picture of my house (on the right), my wife's school room (on left).
With the HVAC designed, we started the permit process. We were ready to submit in August 2018, but the contractor I was planning on using could not start until late October, which is when my wife teaches in her classroom. So we decided to submit in February 2019 in hopes of building in July 2019. This whole time I had only been in touch with one contractor, the one whose employees had done some remodeling of my house. He wanted to do the whole job T&M. That made me nervous. So in January 2019, I contacted another contractor and asked the two of them to bid the job. No T&M. Both agreed.
A few weeks after submitting in February, I made a costly mistake in time and money. I decided that it would be to my advantage to pull the permit application and resubmit as a second unit. The rules had changed for second units and the wait time went from six months or longer to two months. So we redesigned the second room into a bonafide kitchen and full bath and add two feet in length and resubmitted on April 1, 2019. Well the building department scrutinized the plan to a much higher degree now that it was going to be a second unit. I won't go through all the details but the process slowed down and I was paying for more inspections etc. It dragged on into the end of July when the health department wanted a report on my septic system. I pass this and the permit would be issued. Well the septic passed but I found out that I didn't have leach lines like I was told when I bought the house. I had a leach pit and leach pits are not up to code. So I could either put in leach lines to the tune of $5,000 - $20,000 or go back to my original non-second unit plan. So we had to pull the permit application again and re-submit the original plan, but we kept the extra two feet in the second room. The department would not give me a break financially and so I had to pay as if it was my first submittal. If the health department had checked my septic at the beginning of my second submittal, instead of at the end, I would have saved all that time and money. On September 6, 2019, the permit was issue. All said and done, the drafting and permit fees cost me more than double the quoted price. I basically submitted and paid for three plans. I am telling this so hopefully I can save someone from making the same mistake.
After the permit was granted, I received the bids. The contractor who I had originally agreed to do it T&M, bid 10K lower and he was able to start sooner. Plus he was involved with the project from the beginning. For those reasons I went with him.
On September 27, 2019 I signed the contract. Twelve days later on October 9, 2019, they started preparing the area. Last Monday November 18, the foundation was poured. Stay tuned as the build continues! Below are pictures documenting the build so far.
[attachment=1]
I am a percussionist and music teacher on the north coast of California. Two and a half years ago I began my journey into the world of studio building after reading Rod G’s book. Then I subscribed to a couple of studio building forums and met Stuart online, who set me straight on practically every aspect of studio building.
The space I am having built is a practice/band rehearsal room and a place I can teach one on one and group percussion classes. I am not a recording engineer, nor do I wish to become one. I am interested in composing and arranging and I would like to record my personal projects, but I am not interested in engineering or producing someone else’s project.
I started my research into acoustics and studio building in April of 2017 with a goal of September 2018 to complete the building. Work and family business forced me to take some breaks from researching. In March of 2018 I began again in earnest. Stuart set me straight about not guessing about anything and doing the math and relying on tested information instead of conjecture. With his help and other forum contributors, I worked and reworked my plan. I started working with sketchup but didn't get too far. So I hired a draftsperson to draw up plans to submit to the building department. Original plan was a 25'x18'x11'-2" one room studio with a separate 6x18x12' room with a bathroom, a kitchen sink, and "storage" which would be set up for a small refrigerator and stove after completion. Studio portion would be a Room within a room double-stud wall construction with 3/4" OSB and 5/8 drywall on inside and two sheets of 3/4 OSB on outside with Green Glue in between and a 1" gap all around on a concrete foundation. The roof had to be vented, so the middle leaf would be the "real" outer ceiling and the inner leaf would be the studio inside-out ceiling. I would use a vented mini split for heating/cooling.
In June of 2018, I hired Stuart to design the HVAC for the studio. I gave it my all but my then 54 year old brain started to short-circuit so I threw out my own HVAC plan for a professional one.
My acoustic isolation goal was to achieve close to 63dbc with a minimum of 48dbc reduction. My wife has a botanical garden 12 feet from my north wall, which is her haven, so that is the reason for wanting that much of a reduction. I want to be able to play and not bother her. My closest neighbor's front door is 90 feet away and he said that a band rehearsing wouldn't bother him. So he is cool with it. My house back deck and door are 100ft away and my wife's school room is 150ft away. Given my design, Stuart said 63dbc will be tough. We hope to achieve a 60 dbc reduction but it will probably be more like a 55 dbc reduction. If I can achieve this, then when my six-piece Salsa band peaks at 118dbc, anyone outside will only hear 63 db.
Here is a picture of my house (on the right), my wife's school room (on left).
With the HVAC designed, we started the permit process. We were ready to submit in August 2018, but the contractor I was planning on using could not start until late October, which is when my wife teaches in her classroom. So we decided to submit in February 2019 in hopes of building in July 2019. This whole time I had only been in touch with one contractor, the one whose employees had done some remodeling of my house. He wanted to do the whole job T&M. That made me nervous. So in January 2019, I contacted another contractor and asked the two of them to bid the job. No T&M. Both agreed.
A few weeks after submitting in February, I made a costly mistake in time and money. I decided that it would be to my advantage to pull the permit application and resubmit as a second unit. The rules had changed for second units and the wait time went from six months or longer to two months. So we redesigned the second room into a bonafide kitchen and full bath and add two feet in length and resubmitted on April 1, 2019. Well the building department scrutinized the plan to a much higher degree now that it was going to be a second unit. I won't go through all the details but the process slowed down and I was paying for more inspections etc. It dragged on into the end of July when the health department wanted a report on my septic system. I pass this and the permit would be issued. Well the septic passed but I found out that I didn't have leach lines like I was told when I bought the house. I had a leach pit and leach pits are not up to code. So I could either put in leach lines to the tune of $5,000 - $20,000 or go back to my original non-second unit plan. So we had to pull the permit application again and re-submit the original plan, but we kept the extra two feet in the second room. The department would not give me a break financially and so I had to pay as if it was my first submittal. If the health department had checked my septic at the beginning of my second submittal, instead of at the end, I would have saved all that time and money. On September 6, 2019, the permit was issue. All said and done, the drafting and permit fees cost me more than double the quoted price. I basically submitted and paid for three plans. I am telling this so hopefully I can save someone from making the same mistake.
After the permit was granted, I received the bids. The contractor who I had originally agreed to do it T&M, bid 10K lower and he was able to start sooner. Plus he was involved with the project from the beginning. For those reasons I went with him.
On September 27, 2019 I signed the contract. Twelve days later on October 9, 2019, they started preparing the area. Last Monday November 18, the foundation was poured. Stay tuned as the build continues! Below are pictures documenting the build so far.
[attachment=1]
- Attachments
- Soundman2020
- Site Admin
- Posts: 912
- Joined: Thu, 2019-Sep-19, 22:58
- Location: Santiago, Chile
- Contact:
Re: New Studio Build Underway
Welcome Howie! It sure is great to have you here on the forum, and even better to see things FINALLY moving along with your build, after all this time! They really messed you around with the permitting process: what a mess. I just hope they don't mess you around more with the inspections along the way.
Anyway, I'll try to add some more details to your thread about the design process, as things progress with the build.
I'm really looking forward to watching the studio take shape!
- Stuart -
Anyway, I'll try to add some more details to your thread about the design process, as things progress with the build.
I'm really looking forward to watching the studio take shape!
- Stuart -
- howiedrum
- Active Member
- Posts: 97
- Joined: Sun, 2019-Oct-06, 13:57
- Location: Mckinleyville, California U.S.A.
Re: New Studio Build Underway
Thanks Stuart. It's good to be here. Here are some more photos of the conduit, plumbing, rebar, and the pouring of the concrete. Framing should start this week. I will have to stay on top of things with the builder to make sure he doesn't take any short cuts. Stay tuned!
- Starlight
- Full Member
- Posts: 482
- Joined: Wed, 2019-Sep-25, 12:52
- Location: Slovakia, Europe
- Contact:
Re: New Studio Build Underway
That is a great write-up, Howie. I like the way you and your wife are building an enterprise park in your back garden! It is a privilege rto be able to build a studio from the ground up, getting everything right from a studio perspective. You are in good hands with Stuart. Here is looking forward to following your progress.
I thought I was the only person that didn't get far with Sketchup.
What is T&M? Time and money? Twix and Mars? Teas and meals?
howiedrum wrote:I started working with sketchup but didn't get too far.
I thought I was the only person that didn't get far with Sketchup.
howiedrum wrote:No T&M.
What is T&M? Time and money? Twix and Mars? Teas and meals?
- howiedrum
- Active Member
- Posts: 97
- Joined: Sun, 2019-Oct-06, 13:57
- Location: Mckinleyville, California U.S.A.
Re: New Studio Build Underway
Thanks Starlight. Yeah we have a nice sunny parcel that we decided to make our own Shangri-la. I feel very fortunate to be able to build from the ground up.
T & M = Time and materials. So they would charge by the hour for labor and then bill for materials plus 25%. So you never know exactly what you will be paying. According to my contractor, new laws in California now require that companies no longer use this method. Everything has to be bid on and agreed to prior to construction.
T & M = Time and materials. So they would charge by the hour for labor and then bill for materials plus 25%. So you never know exactly what you will be paying. According to my contractor, new laws in California now require that companies no longer use this method. Everything has to be bid on and agreed to prior to construction.
- howiedrum
- Active Member
- Posts: 97
- Joined: Sun, 2019-Oct-06, 13:57
- Location: Mckinleyville, California U.S.A.
Re: New Studio Build Underway
Well wood for framing was delivered yesterday. Without contacting me the builder for the contractor ordered 3/4 plywood instead of the 3/4 OSB because our local suppliers don't carry 3/4 OSB. He thought it was an upgrade. However my plans have always dictated OSB. I spoke with the contractor and they are going take back the plywood for OSB, which will have to be special ordered and more costly for him. So this is the first example of the builder deciding what's best for me.
In a way I am glad it happened know, so I can send the message that they need to listen to me and follow my plans.
- Soundman2020
- Site Admin
- Posts: 912
- Joined: Thu, 2019-Sep-19, 22:58
- Location: Santiago, Chile
- Contact:
Re: New Studio Build Underway
Sigh!He thought it was an upgrade.
Good! Glad you insisted on that.However my plans have always dictated OSB. I spoke with the contractor and they are going take back the plywood for OSB,
For those who might not understand the differences, there are several reasons for preferring OSB over plywood in this application: Firstly, the density of plywood is around 550 kg/m3 (aprox 34 PCF), while the density of OSB is around 620 kg/m3 (38 PCF). The difference is about 12% higher mass for the same thickness. More mass means more isolation. OSB is also more flexible (better acoustically for isolation), and OSB is also usually cheaper than plywood. OSB is available in larger panels, too: up to 16 feet long in some places (not sure if that's a factor for you, Howie), so if you have a tall wall you can often cover it fully with one panel vertically, where you'd need two panels of plywood (simpler, faster construction). OSB has at least the same structural strength as plywood in all paramaters, and for some parameters it is higher. For example, in shear strength, OSB is about twice as good as plywood. (Shear strength [sometimes also spelled "sheer strength"], is resistance to forces acting along the plane of the panel: forces that are trying to slide one side of the panel differently than the other side. Imagine that you are holding a piece of wood by pressing it between the palms of your hands, then you push forward with one hand while pulling back with the other: that causes shear stress inside the panel, since the two faces are trying to move in different directions. OSB is twice as good as plywood in resisting that, and it does have implications in acoustics, since shear waves are one type of wave that occur within wall panels). OSB is also more uniform: no knot holes, internal empty spaces, or other variations across the panel. About the only negative aspect for OSB is that the edges swell if it gets soaked in water for a few hours. So as long as you don't build your studio underwater, OSB is the better choice all around. That's why I normally spec OSB for the outer leaf, and sometimes the inner-leaf too, or maybe MDF for the inner leaf (MDF has even higher mass).
Don't you just love it when others "know better" how to build your studio!So this is the first example of the builder deciding what's best for me.
Not a good way to get it done for studio construction: it's not hard for workers and contractors to take things a little slow when you aren't around to watch them, and thus "pad" your bill without you even realizing it. I know of a case first hand, of a house being renovated close to where I live: the owners were originally told it would take a month and a half to do the job... that was nearly six months ago, and I can hear the contractor's circular saw running as I write this...T & M = Time and materials. So they would charge by the hour for labor and then bill for materials plus 25%.
Ditto for materials: it's not hard for them to over-charge on materials by claiming that more went to waste than really did... Most owners don't have the time to measure off-cuts and count panels as they go in, to check that they really did get their money's worth. And it's easy to substitute inferior materials for what was actually specified
"Caveat emptor" is good advice when hiring a building contractor.
Prophetic words, it would seem! Just a day or two before the first event.... And I'm betting it won't be the last such event...I will have to stay on top of things with the builder to make sure he doesn't take any short cuts.
- Stuart -
- howiedrum
- Active Member
- Posts: 97
- Joined: Sun, 2019-Oct-06, 13:57
- Location: Mckinleyville, California U.S.A.
Re: New Studio Build Underway
Me too! I have a tendency to "make it ok" for folks, but I am learning to correct this.Good! Glad you insisted on that.
Thanks Stuart for the specific details as to why OSB is better. I think that will be helpful to a lot of folks. I spent a good amount of time looking for specific reasons why and there wasn't as clear of an explanation as yours. I forwarded your response to my contractor.
Also in regards to T&M, I would be paying for the contractors extra time ordering the OSB and the extra cost of purchasing it. Another reason not to do T&M. By the way when the contractor first was bidding the project he requested we do it T&M because of all the non-traditional materials and decoupling etc.. made it "difficult" to bid. I am so glad I insisted on a bid. I shared with him another contractors bid and he undercut it by 10K I think in part because he has something against the other contractor. He basically just agreed to build what was on the plan without really pricing out everything. Well this may cost him in regards to the OSB.
I am now preparing an email with all the correct products I expect him to order. Green glue, Acoustic Sealant and Rockwool Insulation. Besides green glue, these products are not spelled out in the approved plan. For insulation in attic the plan states minimum R-22. For everything else it just says insulation. No mention of caulking. I worry he may ask me to pay some for these products. Here is the language on the contract I signed with the contractor:
"Construct music studio. Bid price is for details on the approved plans. Total cost is for the grading of soils and construction of the entire building. The patio and porch included. Nothing outside of the building envelope is included. Customer to provide: Finish plumbing fixtures, Finish electrical fixtures, Cabinetry, Appliances, HVAC (my request), and Paint chips or color of paint."
Do I have a right to insist he pay for all of my required products as part of constructing a music studio? I want to have a planned response if indeed he squabbles about this.
- Soundman2020
- Site Admin
- Posts: 912
- Joined: Thu, 2019-Sep-19, 22:58
- Location: Santiago, Chile
- Contact:
Re: New Studio Build Underway
Thanks Stuart for the specific details as to why OSB is better. I think that will be helpful to a lot of folks. I spent a good amount of time looking for specific reasons why and there wasn't as clear of an explanation as yours.
Then he should have done a bit of research to make himself better informed of what he needed to do! Bidding on a project you don't understand?.... Hmmmm There's a reason the other guy bid 10k higher, I reckon....By the way when the contractor first was bidding the project he requested we do it T&M because of all the non-traditional materials and decoupling etc.. made it "difficult" to bid.
I'm sure you already know this, but watch out for insulation specified by R-rating! There is no relationship between "R" rating and acoustic properties. "R" is all about the thermal rating of the insulation, and it has no bearing on the acoustic characteristics. It would be better so specify the exact product for each part of the build, to make sure he gets it right, with no substitutes. Rockwool company makes several different insulation products, with differing acoustic properties, so not even just specifying "Rockwool" is going to guarantee that you get the right stuff. In fact, some contractors still think that "Rockwool" means any old type of insulation, as a generic thing, not realizing that it is a bran name that refers to a specific company and its products. So do be clear about that: the exact Rockwool product name, and thickness. Important!Besides green glue, these products are not spelled out in the approved plan. For insulation in attic the plan states minimum R-22.
If the materials are specified clearly in the agreement and/or on the plans, then I'd assume that you would be in the right to require that he stick to that. But if it doesn't specifically state on the approved plans or in the written agreement that Green Glue compound is required between the layers of sheathing, and that all joints and gaps must be sealed, then you might not be able to insist on that. You could give him a bit of a break on the "acoustic sealant" part though: proper acoustic sealant is expensive, and ordinary bathroom/kitchen caulk does the job very well at lower cost. As long as it is good-quality caulk that remains flexible, soft and rubber even after it has fully cured, that will work fine. I've had good results with a product called Sikaflex 11FC, which seems to be available in most places around the world, and is reasonably priced, but any good-quality flexible caulk that sticks like crazy will work fine.Do I have a right to insist he pay for all of my required products as part of constructing a music studio?
You'll use LOTS of that stuff, though! Everything needs to be sealed, all over the place. Every possible gap, crack, hole, crevice, etc. Under the sole plates of the walls, for example, is critical. I normally run one bead of caulk down the center line of each sole plate before putting it in place, then another bead about an inch to each side of that, so you get three beads under the sole plate. Like this:
That's an "inside-out" wall that just before it is lowered into place. The wall is raised up on winches from overhead, and is about to be lowered down onto the caulk beads. The same applies if you build the wall conventionally; you still put down beads of caulk under the sole plates.
Then you put another bead under the edge of each layer of sheathing: when you install each panel of sheathing, put down a couple of shims on the floor about 1/16" to 1/8" thick and rest the panel on those, to leave a gap under it, then nail the panel in place and pull out the shims. Then caulk the gap. Do that for each layer of sheathing individually, to ensure that you have excellent seals under the wall. That's often a source of isolation problems, especially if the slab isn't smooth and level. Here's a diagram of how it should be done:
You can see the three beads under the sole plate, then one under each layer of sheathing as it goes up.
The same applies to all joints in the walls, and between the walls, and in the ceilings too. Everything must be sealed airtight. That's a lot of caulk!
- Stuart -
- howiedrum
- Active Member
- Posts: 97
- Joined: Sun, 2019-Oct-06, 13:57
- Location: Mckinleyville, California U.S.A.
Re: New Studio Build Underway
Stuart our power is out so I am using my phone to respond so I can’t put quotes in.
Insulation R value- Yeah I know only thermal. I am using screenshots of the Rockwool “safe and sound in my email to the contractor so there is no confusion. The vented attic will use regular insulation. Any problems there?
In regards to caulking, do you use the three beads under the exterior wall 2x6 floor plate before it is secured to concrete? I am thinking yes. If so I need them to get the caulking on site pronto.
Insulation R value- Yeah I know only thermal. I am using screenshots of the Rockwool “safe and sound in my email to the contractor so there is no confusion. The vented attic will use regular insulation. Any problems there?
In regards to caulking, do you use the three beads under the exterior wall 2x6 floor plate before it is secured to concrete? I am thinking yes. If so I need them to get the caulking on site pronto.
- Soundman2020
- Site Admin
- Posts: 912
- Joined: Thu, 2019-Sep-19, 22:58
- Location: Santiago, Chile
- Contact:
Re: New Studio Build Underway
You should be able to do that. The forum should work almost the same on phones as it does on computers. Just hit the "Post Reply" button above or below the post you want to reply to, and you should have access to all the same tools, including quotes...:our power is out so I am using my phone to respond so I can’t put quotes in.
Of course, copying the text you want to quote might be a pain with a cell phone!
Alternatively, you can click on the little "More" button to the top right of any post.
It gives you more tools. Yours might look a bit different, depending on your phone, but it should give you at least those options, including "Quote", which quotes the entire post into your response, which you can then edit to remove the bits you don't want. It's still a bit of a pain, but it should work. I've tried to make the forum as uniform as possible so it works well on a bunch of different platforms (unlike some other forums, that barely work at all on cell phones, or that have too much "screen clutter").
Anyway, back to your post:
Great! Safe-n-sound is a good product, and will work fine. Make sure that you also specify that the entire cavity between the leaves must be filled, not just the bays between the studs. Important! Not filling the cavity can cost you several dB in isolation.I am using screenshots of the Rockwool “safe and sound in my email to the contractor so there is no confusion.
That's fine. Pile it up as thick as you can, for both thermal and acoustic reasons. Of course, don't cover the AHU with it! You can cover everything else (silencers, ducts, etc.), but the AHU itself should be clear.The vented attic will use regular insulation. Any problems there?
In regards to caulking, do you use the three beads under the exterior wall 2x6 floor plate before it is secured to concrete? I am thinking yes. If so I need them to get the caulking on site pronto.
Definitely! Very much so. Everything needs to be sealed. The caulk should be put down just before the sole plate goes on, so that the sole plate squishes the still wet caulk, forcing it into any cracks or defects in the sole plate itself, as well as in the concrete. Don't let too much time elapse, so that the caulk is already skinned over and partly set before you put the caulk down. Squirt the beads of caulk down, then almost immediately put the sole plate down, and bolt it into place. Check the curing time on the caulk packaging: there's normally two numbers. One tells you how much time you have to still "work" the caulk before it is too much cured to be pliable, and the other number tells you how long it takes to cure completely. So the sole plate needs to be in place before the "workable" time is up, then don't disturb the wall too much after that until the "fully cured" time is up. Generally, fully cured is 24 hours or so. In other words, don't add the sheathing, or ceiling joists, or allow the electrician to drill and bang on the wall until "fully cured". After that, you are fine, but take care to let it set properly to form a good seal, before you do more work on it. The "workable" time often depends on ambient temperature and humidity as well, so get the contractor ro read the instructions carefully!
And do yourself a favor: rent or buy a compressor and a proper pneumatic caulking gun for this. You'll be doing so much of that, that it is a very much worthwhile investment, and you can sell it again when you are done, to recover some of your money. It's a real pain to apply crates of caulk with a hand-operated caulking gun. Withe a compressor and a pneumatic gun, it goes much faster, is much neater, and far less tiring for your hand. Or rather, instead of doing that yourself, suggest it to your contractor as well. He probably already has a compressor that he'll be using for the framing nailers and roof shingle nailers: adding a pneumatic caulking gun just costs a few dollars. Very much recommended. You'll be going through dozens of tubes of caulk, and that pneumatic gun is a life-saver!
- Stuart -
- howiedrum
- Active Member
- Posts: 97
- Joined: Sun, 2019-Oct-06, 13:57
- Location: Mckinleyville, California U.S.A.
Re: New Studio Build Underway
How many case of caulk should I get? Studio portion is 450 sq. ft. and 5400 cu. ft.
How thick should the insulation be?
Thanks Stuart!
How thick should the insulation be?
Thanks Stuart!
- Soundman2020
- Site Admin
- Posts: 912
- Joined: Thu, 2019-Sep-19, 22:58
- Location: Santiago, Chile
- Contact:
Re: New Studio Build Underway
I wish I could give you a simple number, but a lot depends on the workman who applies it: How he cuts the tip of the spout on the tube, for example: If he cuts it to apply narrow beads, then it goes a lot further than if he cuts it bigger, to apply broad beads. Also, how fast he applies it: if he moves slowly, then the bead will spread out more, and the tube won't go as far. But if he works TOO fast, he could leave gaps in the bead.How many case of caulk should I get? Studio portion is 450 sq. ft. and 5400 cu. ft.
It also varies by product: The tube itself should tell you how many linear feet you will get for a give size of bead. You can use that as a rough estimate. Considering 5 beads per wall, multiply the length of each wall by 5 and you'll get an idea of how many tubes you'll need for each wall. But that's just the sole plate: You need to caulk other joints too. Some people go as far as running a bead of caulk up the face of each stud before they put the sheathing on, to ensure that even the nail holes are sealed with caulk. If you want to aim for the highest possible isolation, then it's worth doing that. But it does use a lot of caulk. It wont make a huge difference in overall isolation, but every little bit helps. I have been known to say things like: "If you do ten things that each improve isolation by just a tiny one half of a dB, then you improved isolation by a total of 5 dB, which is big.". Attention to detail is what takes a studio from being merely "good" to being "great".
I wish I could be more specific on how much caulk you'll need, but there's so many variables that any estimate I give you is going to be way off. Use the indications on the tube to estimate initially, then see how it goes on practice with the first dozen tubes. That will give you a better reference for how much you'll need in total, but it will be a lot. You'll probably be surprised at how fast each tube runs out.
For the walls, if I recall correctly, you have about 11 inches cavity depth between the face of the outer leaf sheathing, and the inner leaf sheathing (needed to get your 55 dB theoretical isolation). Thus, 11 inches of insulation goes in your walls.How thick should the insulation be?
Ceiling: You'll want the same in the ceiling: you have about 28" between the middle leaf and inner leaf sheathing, so I'd put 11" in there as well. Make it 12", for simplicity, and split it up: some down on the inner ceiling, the rest up in the middle-ceiling joist bays. For example, 8" resting on top of the inner-leaf ceiling, and another 4" between the middle-leaf joists.
Roof: Same again: 12" would be good. But check what your local building code says about that: You could go with a bit less thickness here, if code allows it. This is more of a thermal issue, and only partly acoustic. 8" of pink fluffy would probably do the job, but go with what codes says for that, not with what I say. Basic rule for insulation: more is better!
- Stuart -
- howiedrum
- Active Member
- Posts: 97
- Joined: Sun, 2019-Oct-06, 13:57
- Location: Mckinleyville, California U.S.A.
Re: New Studio Build Underway
Thanks Stuart that give me some direction for caulking and insulation.
In regards to quoting, it’s a pain on my phone but the more button may be the answer. Also, is there a way I can get an email whenever someone posts to this thread?
In regards to quoting, it’s a pain on my phone but the more button may be the answer. Also, is there a way I can get an email whenever someone posts to this thread?
- Soundman2020
- Site Admin
- Posts: 912
- Joined: Thu, 2019-Sep-19, 22:58
- Location: Santiago, Chile
- Contact:
Re: New Studio Build Underway
Right next to the "Post Reply" button there's an icon that looks like a wrench (or "spanner" for folks in the UK, Australia and South Africa...Also, is there a way I can get an email whenever someone posts to this thread?
- Stuart -
-
- Similar Topics
- Statistics
- Last post
-
-
Replies: 5
Views: 62725 -
by gullfo
View the latest post
Tue, 2025-Apr-15, 17:55
-
-
New build with light gauge steel framework Attachment(s)
by seaweednylon » Thu, 2025-Mar-20, 06:38 » in RECORDING STUDIO CONSTRUCTION -
Replies: 3
Views: 12687 -
by gullfo
View the latest post
Thu, 2025-Mar-27, 12:20
-
-
-
Just Another Garage Studio Attachment(s)
by bradvuv » Sat, 2025-Aug-16, 01:40 » in RECORDING STUDIO DESIGN -
Replies: 6
Views: 94643 -
by bradvuv
View the latest post
Tue, 2025-Aug-19, 01:41
-
-
-
CYC WALL IN STUDIO? PROBLEMS?
by StudioJiimaan » Mon, 2025-Feb-17, 20:23 » in RECORDING STUDIO ACOUSTICS AND TREATMENT -
Replies: 6
Views: 50153 -
by StudioJiimaan
View the latest post
Fri, 2025-Feb-21, 19:03
-
Who is online
Users browsing this forum: No registered users and 21 guests