New Home Studio build in Japan

Start your own studio thread here: Goals, plans, layouts, treatment, speakers, questions, queries, comments...
kwow
Active Member
Posts: 36
Joined: Sat, 2020-Aug-29, 03:12
Location: Moriyama-shi, Shiga-ken, Japan..

New Home Studio build in Japan

#1

Postby kwow » Thu, 2020-Sep-10, 02:28

Hello Everyone!

I'm having a house and a home studio built in Japan, and the construction is supposed to start in about 2 months.

The studio is going to be a "One Room Studio" and will be used to record and mix as well as playing the drums. I am one of the quieter drummers, but I can't tell you exactly how loud I am since I'm living in a condo right now and there's no way for me to test it.

The good news is that the architect knows all about the local building code, and all the plans will go through a structural engineer for approval. The bad news is that they of course have no experience building a studio.

And my budget, it's really hard to say just because I'm having the house and the studio built together, but I'd say may be about US $100,000 for the studio part so far and that's already spent (not literally, but for the foundation, lumber, drywall, labor, etc.) I'll probably be spending more on pre-made isolation doors, and a silencer system for the ventilation, etc. not to mention acoustic treatment later (I'll be doing the acoustic treatment myself).

1_surroundings.jpg

As you can see above, fortunately, for the most part I don't have too many neighbors but the house with the blue roof is pretty close from where the studio is going to be (only a few of meters away).

2_land.jpg

The land, although it's not really all that big, it's actually 2 lots, and after the house and the studio is built I'm planning on selling a portion of it to get some money back as shown in the picture. If I do sell that part, I might end up with a neighbor on that side as well.

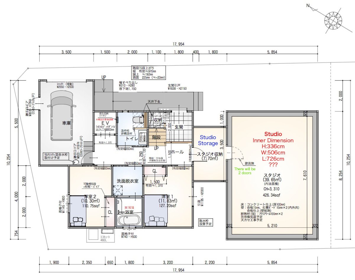
3.house_layout.jpg

You can see the basic layout of the house and where the studio storage (for extra equipment, etc.) and the studio is going to be. The image doesn't show it, but there will be double door. Oh, and the foundation will be separated with expansion joint between where the house and the studio storage meet. I guess, this is so that if one of the buildings fall apart, it doesn't take down the other one with it.

4.house_foundation.jpeg
4.house_foundation.jpeg (48.61 KiB) Viewed 46751 times
4.house_foundation.jpeg
4.house_foundation.jpeg (48.61 KiB) Viewed 46751 times

In Japan, there's a big hollow space above the foundation/below the house floor to keep things ventilated so to keep moisture out. And that's how the house side foundation will be, but obviously that won't be good for the studio to have such a chamber so it will be packed with compacted earth and capped with a concrete slab above it. This is also going to keep the floor level of the house and the studio the same.

5.studio_foundation.jpeg
5.studio_foundation.jpeg (36.82 KiB) Viewed 46751 times
5.studio_foundation.jpeg
5.studio_foundation.jpeg (36.82 KiB) Viewed 46751 times

This is how the studio foundation will be built (in order - from left to right). I am considering having the the top part isolated from the rest of the foundation with expansion joint (I know, I'm not supposed to say that I want a floating floor, etc. but I do play the drums and a couple of neighbors are close). I'm waiting to hear from the structural engineer if it's doable. If not, it will be a big concrete box with compacted dirt inside.

6.wall_structure.jpeg

Here's an image for how I'm planning the wall structure. From the inside: 3 layers of 15mm drywall, a vapor barrier, 33cm air gap (including the framing for the inner and outer leaf), 1 layer of 9mm structural plywood, 3 layers of gypsum sheathing, water proof sheet, furring strip to mount the siding, and finally the external siding.

As you can see, the studs for the inner and outer leaf are staggered, and each layer of drywall will be staggered to keep the seams from overlapping. The seems will be taped and mudded. I'm planning on having the edges of each layer stuffed with backer rod and caulked (with colored caulk as Stuart suggested somewhere).

The drywall sizes here are a bit weird in Japan. They are either 910mm x 1820mm (based on an old Japanese measuring system) or 1000mm x 2000mm. The plan right now is to go with the latter which means that the stud spacing is going to be 50cm on center. Based on this, I'm not sure how the corners of the drywall and backer rod should fit together exactly. Any advise will be appreciated :)


The inner dimension of the room I'm thinking of right now is H:336cm, W:506cm, and L:726cm.
Using https://www.acoustic.ua/forms/rr.en.html it seems to be ok with Bolt, EBU/ITU, IEC, and Cox.
I did also punch in the figures above into a couple of other room mode calculators that were suggested here: https://amcoustics.com/tools/amroc and http://www.bobgolds.com/Mode/RoomModes.htm

It seems ok to me but then again, I'm a total amateur.

I've read Myth: Modes and room ratios: Myth: Modes and room ratios: "I have too many modes! I need a better ratio to get rid of them" https://www.digistar.cl/Forum/viewtopic.php?f=16&t=557 and I know I'm not supposed to go too crazy about this, but I have a rare opportunity to have a room built from scratch so I want make the best of it and not screw up.

I could make the width of the room up to around 520cm, and the length up to about 760cm, but the height, because I'll be putting up the acoustic treatment myself later (and I'm a short guy in my late 50's) I wouldn't want it much higher since it will be hard to work on. But any suggestions, recommendations will be greatly appreciated regarding the dimension. I'm very nervous about making the final decision but I have to very soon.

For now, if possible, I would like any advice/opinion from those of you who are experienced about the room dimension, wall structure (and the expansion joint for the foundation, or anything that I mentioned).

I'll be writing/asking about the ceiling/roof design (thinking of the inside out design), ventilation, doors some time soon. I hope I didn't miss anything.

Thank you so much in advance!

Keith



User avatar
ericwisgikl
Active Member
Posts: 76
Joined: Sun, 2020-May-31, 15:15
Location: Buenos Aires, Argentina..

New Home Studio build in Japan

#2

Postby ericwisgikl » Thu, 2020-Sep-10, 19:08

Hi kwow,

I'm not an expert, but looking at dimensions into amroc calculator, the best options seems to be 706 x 520 x 336 and 706 x 506 x 336. I'm looking mainly at Bonello chart, which shows modes distribution, and best distribution is when it is even, and there are more modes than previous bands, as frequency rises.
706 520 336.png

706 506 336.png

Keeping that in mind, look at 760 x 506 x 336, where there are 7 modes into two adjacent bands. This is not bad, but I bet it's better having less than next bands.
760 506 336.png

And, lastly, at 760 x 520 x 336, there is a band where there are 8 modes. That's more than next band, and that's not good.
760 520 336.png


IMHO, between 706 x 520 x 336 and 706 x 506 x 336, I'll choose 706 x 520 x 336, since there is extra room for treatment there.

Cheers,
Eric



kwow
Active Member
Posts: 36
Joined: Sat, 2020-Aug-29, 03:12
Location: Moriyama-shi, Shiga-ken, Japan..

New Home Studio build in Japan

#3

Postby kwow » Fri, 2020-Sep-11, 04:57

Hi Eric

Thanks for the reply!

All I understand about the Bonello chart is that, as you go from left to right, it's supposed to go up in numbers (or at least stay the same), and not go up and down. And it's more ideal if modes per third doesn't stay the same or go up drastically except for the beginning part and the end part?

I totally agree by making the width 520cm, it would leave me extra space for the treatment which would be helpful :)

Do you take other methods like EBU/ITU, or Cox - or not really?

Thank you for your input!

Keith



kwow
Active Member
Posts: 36
Joined: Sat, 2020-Aug-29, 03:12
Location: Moriyama-shi, Shiga-ken, Japan..

New Home Studio build in Japan

#4

Postby kwow » Mon, 2020-Sep-14, 10:43

Eric

Thanks so much for responding to my post!
I posted a reply a few days ago, but I have a feeling that it might have gotten lost somehow. May be it has something to do with the glitches that Stuart posted about.

I hear you (Eric) about leaving space for acoustic treatment. I'm struggling a bit to decide between "more width" vs. "more length".

Do you mainly go by Bonello chart? Or do you (or anyone else) consider Bolt, EBU/ITU, IEC, and Cox to be just as, or at least somewhat important? Just curious.

Thanks again!
Keith



User avatar
Soundman2020
Site Admin
Posts: 916
Joined: Thu, 2019-Sep-19, 22:58
Location: Santiago, Chile
Contact:

New Home Studio build in Japan

#5

Postby Soundman2020 » Mon, 2020-Sep-14, 17:30

Hi there Keith, and Welcome to the Forum! :thu: :)

It's great to have you here. And congrats on your studio build! It looks like you have some really good possibilities here.

The studio is going to be a "One Room Studio" and will be used to record and mix as well as playing the drums. I am one of the quieter drummers, but I can't tell you exactly how loud I am since I'm living in a condo right now and there's no way for me to test it.
Drums are loud, even when played "quietly": Assume that you will be around 95-100 dBC, regularly hitting 105-110 dBC, and occasionally around 115 dBC when you fel very enthusiastic! :) Those are reasonable ball-park figures.

Also, tracking live instruments and mixing accurately are two rather different scenarios, acoustically: they don't go together well. There's a couple of methods for dealing with that, but the best one is with "variable acoustic" treatment in the room, that you can flip between two positions in one way or another, to accommodate both extremes. Like this: What is variable acoustics? How do I do that?

The good news is that the architect knows all about the local building code, and all the plans will go through a structural engineer for approval.
Excellent! :thu:

The bad news is that they of course have no experience building a studio.
Not so excellent... but typically that is the case.

but I'd say may be about US $100,000 for the studio part so far and that's already spent (not literally, but for the foundation, lumber, drywall, labor, etc.)
That's a decent budget for a place that size, with your goals.

I'll probably be spending more on pre-made isolation doors, and a silencer system for the ventilation, etc. not to mention acoustic treatment later (I'll be doing the acoustic treatment myself).
[/quote]It might be better (and cheaper) to build your own doors, or get them built on-site by your carpenter: site built door for high isolation You'll likely get better results, and the doors can be custom designed specifically for what you need them to do.

You can see the basic layout of the house and where the studio storage (for extra equipment, etc.) and the studio is going to be. The image doesn't show it, but there will be double door. Oh, and the foundation will be separated with expansion joint between where the house and the studio storage meet. I guess, this is so that if one of the buildings fall apart, it doesn't take down the other one with it.
That0s also great acoustically, since it means your studio slab will be decoupled from the house slab: less direct transmission of structure-borne noise, in both directions.

In Japan, there's a big hollow space above the foundation/below the house floor to keep things ventilated so to keep moisture out. And that's how the house side foundation will be, but obviously that won't be good for the studio to have such a chamber so it will be packed with compacted earth and capped with a concrete slab above it. This is also going to keep the floor level of the house and the studio the same.
Any chance you can get that filed with dry sand, instead of earth? Sand has pretty good acoustic properties.


This is how the studio foundation will be built (in order - from left to right). I am considering having the the top part isolated from the rest of the foundation with expansion joint (I know, I'm not supposed to say that I want a floating floor, etc. but I do play the drums and a couple of neighbors are close). I'm waiting to hear from the structural engineer if it's doable. If not, it will be a big concrete box with compacted dirt inside.
In your case, you actually COULD float that floor if you wanted to! You have all the conditions that make it possible. In which case, the cavity underneath would be filled (at least partially) with insulation, and the slab itself would rest on proper isolation springs, such as those made by Mason Industries. Something like this:
mason-floating-floor-isolation-springs.jpg
I'm not sure if you would want to do that, but you have the right conditions where you could pull it off.

Here's an image for how I'm planning the wall structure. From the inside: 3 layers of 15mm drywall, a vapor barrier, 33cm air gap (including the framing for the inner and outer leaf), 1 layer of 9mm structural plywood, 3 layers of gypsum sheathing, water proof sheet, furring strip to mount the siding, and finally the external siding.
Sounds like a good plan. That should get you good isolation. What I would suggest that instead of just but-jointing your drywall leaves against each other in the corners, you should stagger those joints, like this:
Drywall-joint-#2.png
You still use backer-rod and caulk on each layer, but doing it this way improves isolation and provides some additional protection against lost sealing due to building movement. EG: Earthquakes. You and I both line in major earthquake territory, so we are more aware than most people just how much a building can move, flex, wobble, and tremble in a big quake. Doing simple things like this can help to prevent internal damage to your drywall, since the layers can move individually a little, and it also helps to ensure that even if you lose a seal on one layer the other seals will likely still be in tact, so your isolation loss is not so severe.

I'm planning on having the edges of each layer stuffed with backer rod and caulked (with colored caulk as Stuart suggested somewhere).
Right! And "white" is a color too! The reason for recommending colored caulk (including white), is because the pigment used in making it actually adds a lot of mass: the translucent / transparent types of caulk have lower density, so they aren't as good for acoustic purposes. Colored caulk is around 2 to 3 times more dense than drywall, so your seal can be about half the thickness of the drywall while still retaining the mass you need. Thus, you can fit in backer rod and caulk, to get two seals as well as suitable mass.
The drywall sizes here are a bit weird in Japan. They are either 910mm x 1820mm (based on an old Japanese measuring system) or 1000mm x 2000mm. The plan right now is to go with the latter which means that the stud spacing is going to be 50cm on center. Based on this, I'm not sure how the corners of the drywall and backer rod should fit together exactly. Any advise will be appreciated
OC framing of studs needs to be whatever it needs to be! "Standard" sizes are 406mm and 610mm (or just 400 and 600), based on the old imperial measurements of 16" and 24", but if materials are a different size where you live, then you just adapt to fit that. No problem.

Corners should be "situation 1" (or "situation 3" for abutting walls):
framing-corners!-GOOD!.gif
framing-corners!-GOOD!.gif (7.07 KiB) Viewed 46703 times
framing-corners!-GOOD!.gif
framing-corners!-GOOD!.gif (7.07 KiB) Viewed 46703 times
Situation 2 is also OK, as long as you add an extra stud between the end stud and the nailer, but not as show here, with an empty gap.

I've read Myth: Modes and room ratios: Myth: Modes and room ratios: "I have too many modes! I need a better ratio to get rid of them" https://www.digistar.cl/Forum/viewtopic.php?f=16&t=557 and I know I'm not supposed to go too crazy about this, but I have a rare opportunity to have a room built from scratch so I want make the best of it and not screw up.
You have a nice big room with high ceilings, which is great: you can afford to tweak things a little, in your case! Some of what I wrote in that article was aimed more at people with tiny rooms, thinking of making them even smaller in order to hit some "magical" ratio: for those cases, the key metric is "More Air Volume": in other words, if it is already small, don't shrink it even more! In your case, you don't have those same conditions, so if you want to, by all means tweak the dimensions a little... as long as you don't go crazy! :)

I could make the width of the room up to around 520cm, and the length up to about 760cm, but the height, because I'll be putting up the acoustic treatment myself later (and I'm a short guy in my late 50's) I wouldn't want it much higher since it will be hard to work on. But any suggestions, recommendations will be greatly appreciated regarding the dimension. I'm very nervous about making the final decision but I have to very soon.
Two options here: Don't add treatment to the ceiling later: build it in from the start! Doing an "inside-out" ceiling does that for you, and also gains you even more ceiling height (always a good thing...): What is an "inside-out ceiling"? Do you need one? How do you build it?

I'll be writing/asking about the ceiling/roof design (thinking of the inside out design), ventilation, doors some time soon. I hope I didn't miss anything.
So far, your basic plan sounds reasonable, with some caveats, but you seem to be on the right track!


- Stuart -



kwow
Active Member
Posts: 36
Joined: Sat, 2020-Aug-29, 03:12
Location: Moriyama-shi, Shiga-ken, Japan..

New Home Studio build in Japan

#6

Postby kwow » Thu, 2020-Sep-17, 13:27

Hi Stuart, (and everyone else, of course)

Thank you so much for your detailed reply!
And I’m sorry for my late reply.

Inner Dimension of the Room
The inner dimension that I posted before H: 336cm, W: 506cm, L: 726cm seems to clear all Bonello, Bolt, EBU/ITU, IEC, + Cox which took a lot of playing around with numbers :)

・Checking the Bonello chart using https://amcoustics.com/tools/amroc?l=72 ... 36&r60=0.6 modes per third comes up to be 1, 1, 1, 2, 6, 8, 13, 25. Is this ok, or is this funky in some way? My only understanding is that the numbers should go up, or stay the same as you go from left to right.
acoustics.com.jpeg

・With EBU / ITU recommendation, you had mentioned in Myth: Modes and room ratios: "I have too many modes! I need a better ratio to get rid of them" that “the orange triangles outline the set of ratios recommended by the EBU”. Now there are actually 2 triangles and a square. If the yellow dot falls within the square (and not one of the triangles) is it still in the EBU / ITU’s acceptable range?

・With Trevor Cox recommendation, there’s a drop down menu where you can “Choose room cubing, cube.m.” and the choices are 50, 100, or 200. Is it OK that I have this set to 100 since the volume of the room I’m planning is approximately 124 cubic meter? If so, with this dimension, the yellow dot actually falls on one of the dark areas of the diagram (which is pretty hard to do!).
acoustic.ua.jpeg

If all of these seem OK, I think I’m going to go with it. Based on the room that I had in my old house which was 12’ x 16’, even with the acoustic treatment it will be a lot bigger than what I had.


Framing Corners, Staggering Drywall Joints and Backer Rod
Thank you for the images that you posted! Very helpful :)
For the corners, I’m pretty sure that they are going to use 105mm x 105mm (square and not rectangle) lumber. Please look at the images below to see if the nailers are OK like this. Are the drywalls staggered correctly for the inner and outer leaf? And are the backer rods in the right place? And is it OK that the 9mm structural plywood for the outer leaf are butted together in the corner as shown? Or should there be a backer rod in between these also? Sorry to ask so many questions.
7.outer_leaf.jpeg
7.outer_leaf.jpeg (30.66 KiB) Viewed 46655 times
7.outer_leaf.jpeg
7.outer_leaf.jpeg (30.66 KiB) Viewed 46655 times
8.inner-leaf.jpeg
8.inner-leaf.jpeg (24.37 KiB) Viewed 46655 times
8.inner-leaf.jpeg
8.inner-leaf.jpeg (24.37 KiB) Viewed 46655 times

Earth vs. Sand
I’ll check with the builders if it’s going to be much more expensive to fill the foundation with sand instead of compacted earth. Is the sand supposed to be a specific type?

Floating the Floor
The thought of floating the floor is tempting. Can you link me to an article or explain how the floor should be floated with the isolation springs, insulation, etc. that you speak of? And exactly what kind of isolation springs? I wonder if I can get these here and how much …

Would it still be effective just to isolate the top part with the expansion joint as I mentioned in my original post?

The Ceiling
Mine ceiling for the inner shell is going to be “inside out” in a sense that the beams/joists will be showing (or the drywalls are going to sit on them. But since they’re going to build it from scratch. they’ll put up the roof first, put the ceiling for the inner shell, then finally the ceiling for the outer shell. And the ventilation system will be put between the ceiling of the outer shell and the roof. I’ll post an image soon, I hope.

Thank you so much!
Keith



kwow
Active Member
Posts: 36
Joined: Sat, 2020-Aug-29, 03:12
Location: Moriyama-shi, Shiga-ken, Japan..

New Home Studio build in Japan

#7

Postby kwow » Mon, 2020-Oct-05, 14:16

I realized that the backer rod/staggered drywall image that I posted is all wrong. I staggered the drywall like Stuart suggested, but the drywalls are touching each other which completely negates the use of backer rod and caulk. I have a new image that should be correct so I'm going to post it. If anyone sees anything wrong with it, please let me know.

6.walls_backer_rod.jpeg


Thanks,
Keith



User avatar
ericwisgikl
Active Member
Posts: 76
Joined: Sun, 2020-May-31, 15:15
Location: Buenos Aires, Argentina..

New Home Studio build in Japan

#8

Postby ericwisgikl » Mon, 2020-Oct-05, 22:31

Hi Keith,

You weren't wrong. Drywall plies touching themselves isn't an issue, due to they are all the same leaf. Where they wouldn't touch is between inner and outer leaf.

Baker rod isn't there to isolate drywall plies by themselves. It's there in order to do a "back" for caulking.

Cheers,

Eric



kwow
Active Member
Posts: 36
Joined: Sat, 2020-Aug-29, 03:12
Location: Moriyama-shi, Shiga-ken, Japan..

New Home Studio build in Japan

#9

Postby kwow » Thu, 2020-Oct-08, 12:49

Hi Eric

Thanks for your reply.

I have a feeling that you may have misunderstood what I was saying. If you see the image below, you can see that the corners of the drywall are touching each other. The whole point of backer rod and caulk is so that when the building moves with earthquake and/or for other reasons, these kind of points don't crack. This is documented on Rod Gervais' book as well as stuff that I've seen posted elsewhere by John Brandt: basically to backer rod and caulk around perimeter of each layer of drywall.
bad_contact.jpeg
bad_contact.jpeg (41.26 KiB) Viewed 46322 times
bad_contact.jpeg
bad_contact.jpeg (41.26 KiB) Viewed 46322 times

It should be more like the image below.
correct_corners.jpeg
correct_corners.jpeg (35.22 KiB) Viewed 46322 times
correct_corners.jpeg
correct_corners.jpeg (35.22 KiB) Viewed 46322 times

Now, I might not need as many backer rod, but as I've seen Rod say, it's better to be redundant than not enough.

Thanks for responding though. I appreciate it. And by the way, your place look really nice :)

Keith



User avatar
endorka
Senior Member
Posts: 724
Joined: Mon, 2019-Sep-23, 06:36
Location: Scotland
Contact:

New Home Studio build in Japan

#10

Postby endorka » Thu, 2020-Oct-08, 20:23

I've seen the version with the zig zag of backer rod and caulk in the corner done before for wall to wall corners so reckon that's the one. As you say it will prevent cracks if the earth moves. It's quite common to see this around here in new builds with standard plaster & tape joins. Even without earthquakes, presumably because of the building settling and/or seasonal changes.

The only time I've seen this approach queried is for ceiling to wall joins. Apparently it's possible for certain types ofceiling to drop a little over time, and the concern is that the ceiling will press down onto the caulk on top of the wall plasterboard, causing it to compact and provide less decoupling along the join. I've no idea how significant this is though.

Cheers,
Jennifer



kwow
Active Member
Posts: 36
Joined: Sat, 2020-Aug-29, 03:12
Location: Moriyama-shi, Shiga-ken, Japan..

New Home Studio build in Japan

#11

Postby kwow » Fri, 2020-Oct-09, 12:03

Hi Jennifer

Thanks for the input. I appreciate it :)

I too have read that just from temperature change (things expanding/shrinking), and reasons other than earthquakes, the edges of drywall can jam into each other and crack.

As for the ceiling, I can see how the ceiling drywall can drop down with weight over time. But then again, I would guess it’s better to have space with backer rod and caulk than not having it? I'm not sure.

Thanks:)
Keith



User avatar
endorka
Senior Member
Posts: 724
Joined: Mon, 2019-Sep-23, 06:36
Location: Scotland
Contact:

New Home Studio build in Japan

#12

Postby endorka » Fri, 2020-Oct-09, 13:05

kwow wrote:Source of the postAs for the ceiling, I can see how the ceiling drywall can drop down with weight over time. But then again, I would guess it’s better to have space with backer rod and caulk than not having it? I'm not sure.


Yes you definitely need something in there to seal the inner leaf. In the example I read I think the solution was not to have the corner overlapping in the staggered way, but in the standard way. So there would just be a simple gap between the two. Then the layers of backer rod and caulk are built up one at a time. I expect this would be more prone to seal failure than the staggered way.

I strongly suspect it's only a concern if you have some sort of "suspended" ceiling on resilient clips or similar. I can't see it being a problem if the ceiling is attached directly to joists.

Cheers,
Jennifer



kwow
Active Member
Posts: 36
Joined: Sat, 2020-Aug-29, 03:12
Location: Moriyama-shi, Shiga-ken, Japan..

New Home Studio build in Japan

#13

Postby kwow » Sat, 2020-Oct-10, 11:24

Hi Jennifer

In my case, the ceiling will be attached directly to the joists. The examples that I mentioned by Rod and John both were using the staggered layers of drywall for the ceiling. However, this is only doable (I think) if you're doing 1 layer of all 5 sides (ceiling + 4 walls) at a time. Like doing 1 layer of ceiling, 1 layer of wall A, 1 layer of wall B, 1 layer of wall C, 1 layer of wall D and then moving onto the 2nd layer, so on ...

I'm still trying to work out the details of the inner and outer ceiling with the builder (there's a height limit with the outer shell) and we might need to put up drywall for all 4 sides of the wall, and put up the ceiling last for the inner shell/leaf. In this case, we'll probably do it like you're saying. Thank you for your input :)

If anyone knows what kind of sand should be used to fill the foundation instead of dirt/earth, please let me know. I got an OK from the architect today to separate the top part of the concrete foundation from the rest, meaning the inner and outer shell will be sitting on its separated foundation (like a floating floor). This should help with low frequency isolation :)

Thanks!
Keith



User avatar
Starlight
Full Member
Posts: 482
Joined: Wed, 2019-Sep-25, 12:52
Location: Slovakia, Europe
Contact:

New Home Studio build in Japan

#14

Postby Starlight » Sat, 2020-Oct-10, 12:08

Ceiling-wall-plan.jpg

Keith, this was almost what I did. Almost because we realised we needed a layer of OSB before we put up the plasterboard layers. Our general contractor has done most things including the studio walls but a friend who is experienced with ceilings came in an mounted the ceiling isolation mounts and returned later to mount the OSB and plasterboard ceiling. With the weight of the ceiling determining how low it hung, pulling down on the isolaton mounts, I wanted the ceiling up before building the walls up to the ceiling. Putting up the OSB wall layer first worked kind of like a piston bore for the ceiling, the piston. At least that was my logic.

One thing I would say is different in practise to both our drawings is that if the gap is left so that the backer rod sits in the gap uncompressed, should the gap grow, the backer rod cannot expand to fill the gap. For that reason, I left a gap as close to half the thickness of the backer rod as I could, shoved the backer rod into the gap and then caulked. Every layer, so for my place, that was 4 times on the walls and 3 times on the ceilings. I got through 180 metres of backer rod and I cannot be exact about the caulk as it gets used everywhere but I would guess about 40 tubes got used on the walls and ceiling.

If you want to see, look at the photos in posts 7 (isolation mounts), 20 (backer rod), 23 (isolation mount track), 50 (ceiling OSB and plasterboard) and 56 (walls going up to meet the ceiling) in my topic, here.



kwow
Active Member
Posts: 36
Joined: Sat, 2020-Aug-29, 03:12
Location: Moriyama-shi, Shiga-ken, Japan..

New Home Studio build in Japan

#15

Postby kwow » Sun, 2020-Oct-11, 11:25

Hi Starlight

Thank you for your input!

I started to check out your thread, and your place look really nice :) I'm going to spend some time studying it because there seem to be a lot of good stuff in there.

I'm not sure if what you're saying about "With the weight of the ceiling determining how low it hung, pulling down on the isolation mounts" applies to my situation since I won't be using any isolation mounts. Also, an image in Rod's book (Figure 10.12 page 264) and an image I found on GS https://www.gearslutz.com/board/attachments/studio-building-acoustics/269745d1325480754-drywall-corners-acoustical-caulk-gypsum-board-caulking-details.pdf by John both have the ceiling gypsums staggered. I'm not sure what Stuart's take on these are. Please don't get me wrong. I'm not doubting your knowledge or anything. I'm just wondering.

As for backer rod, it may look like they "sit in the gap uncompressed" (sorry for the unclear picture) but the plan is stuffing 13mm backer road into 9mm-10mm space. From my research so far, it's common to use 1/2" (= 1.27cm) backer rod into a 3/8" (= 0.95cm) space. So my plan is to use 13mm backer rod into a 9-10mm space. Do you think that's ok?

I'm also reconsidering having 3 layers of gypsum. I may go with 2 layers of gypsum with green glue instead since Stuart, Rod, and Andre seem to be in agreement about the latter being more effective. But then again, green glue is pretty darn expensive in Japan so I'll have to price them out first.

Anyway, thank you again and I think I'll be reading your thread for a while picking things up :)

Keith




  • Similar Topics
    Statistics
    Last post

Who is online

Users browsing this forum: No registered users and 27 guests