Up All Nite Studio - 2022 [Control Room]
Up All Nite Studio - 2022 [Control Room]
i'm assuming the boxed area in the corner of the den is the chimney for the house? if not, i'd remove that to increase the space and introduce more symmetry. the bedroom option might be good for acoustics but not clients...
			
									
									Up All Nite Studio - 2022 [Control Room]
gullfo wrote:Source of the post i'm assuming the boxed area in the corner of the den is the chimney for the house? if not, i'd remove that to increase the space and introduce more symmetry. the bedroom option might be good for acoustics but not clients...
Hi Glenn ... its' not the chimney, it's for the main Central Heat/AC.
Up All Nite Studio - 2022 [Control Room]
that might not be bad then as its effectively hollow then. so just some deadening on the wall and door area to avoid a resonance. let the LF go away 
 on the front wall though - with the offset window, if you have the option to create a window plug (e.g. as interior solid shutter-like panels would work), that would help ensure symmetry up front.
			
									
									Up All Nite Studio - 2022 [Control Room]
gullfo wrote:Source of the post that might not be bad then as its effectively hollow then. so just some deadening on the wall and door area to avoid a resonance. let the LF go awayon the front wall though - with the offset window, if you have the option to create a window plug (e.g. as interior solid shutter-like panels would work), that would help ensure symmetry up front.
I just pounded a bit on that back wall that juts into the room .... it is indeed 'hollow' ... and of course ... as a new house build, they used 1/2" drywall.
As for 'deadening' ... I have 4" thick, broadband absorbers available. ?!? I also have some 2" rigid fiberglass triangle pieces. I initially thought to straddle that corner with them ... but are you suggesting to just cover that back part of wall ?
2. That 'offset' window. The window plug ... are you describing what is called 'wooden interior shutter blinds' ?
Just wanting to be sure I'm following correctly.
Glenn ... I wish I had something better to work from ... no one more disappointed then me on that.
The Master bedroom idea is not going over too well either. I know that space would be better in some ways ... but I'm also not crazy about using that room for this. Most likely, I'll make the sitting area a traditional office type thing.
Back to the Den ... is there any additional info, drawing, pics that I can post ?
Thanks for checking on me and the help !
Up All Nite Studio - 2022 [Control Room]
Hi Glenn,
Here is the 2019 SU file that I have to this point.
thanks !
===========
edit
-------------
oh ... and let me apologize up front, as its been several years since using SketchUP.
			
									
									Here is the 2019 SU file that I have to this point.
thanks !
===========
edit
-------------
oh ... and let me apologize up front, as its been several years since using SketchUP.
Up All Nite Studio - 2022 [Control Room]
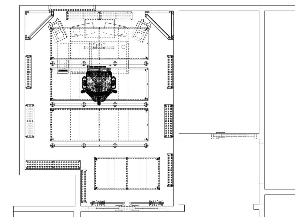
so, in general, the plan is decent
- make a window plug which you can remove if needed. this will help with the symmerty.
- i'd lose the shelf unit you have speakers on. run a reinforced board between the block stands to put your speakers on.
- all wall absorbers on French cleats (almost sounds naughty)
- clouds on chain to allow adjustment (you know the drill)
- i'd go with a tall corner stack on the front corners, a deep flat absorber on the back wall, heavy drapes on the doors, first reflection on the sides of the listening spot + deeper ones if you can part way back. the door alcove - some thinner units to clear to door swings. deep on the front wall. deep on the clouds with as much coverage as you can leaving room for lights and vents.
- all absorbers (if you need to make them) should have layers of MLV in-between semi-rigid. they're all 5' tall. clouds are 6' x 8" deep
see attached.
							- make a window plug which you can remove if needed. this will help with the symmerty.
- i'd lose the shelf unit you have speakers on. run a reinforced board between the block stands to put your speakers on.
- all wall absorbers on French cleats (almost sounds naughty)
- clouds on chain to allow adjustment (you know the drill)
- i'd go with a tall corner stack on the front corners, a deep flat absorber on the back wall, heavy drapes on the doors, first reflection on the sides of the listening spot + deeper ones if you can part way back. the door alcove - some thinner units to clear to door swings. deep on the front wall. deep on the clouds with as much coverage as you can leaving room for lights and vents.
- all absorbers (if you need to make them) should have layers of MLV in-between semi-rigid. they're all 5' tall. clouds are 6' x 8" deep
see attached.
- Attachments
 - 
				
- RJHollins - Den Studio v003 su2019.zip
 - (9.9 MiB) Downloaded 733 times
 
- RJHollins - Den Studio v003 su2019.zip
 - (9.9 MiB) Downloaded 733 times
 
 
Up All Nite Studio - 2022 [Control Room]
video for fun:  
							- Attachments
 - 
				
- RJHollins - Den Studio v003 0.zip
 - (12.26 MiB) Downloaded 674 times
 
- RJHollins - Den Studio v003 0.zip
 - (12.26 MiB) Downloaded 674 times
 
 
Up All Nite Studio - 2022 [Control Room]
Glenn  .......  absolutely amazing !   
   I actually 'heard' the Room when I first saw the Render  
 
oh, to be 30 years younger
 
OK ... so I'm a bit wipe out at the moment, having gone to Phys Therapy today [they threw me around the room several times,
had me baking in a neck wrap ... and then proceeded to pull/stretch and even twist the neck and shoulders.
The good news ... at no point did I have my eyes spinning or bouncing, and no feeling of being pulled down to the floor. Even though
I still have a small sense of being detached from body ... there IS a noticed improvement ... a step toward 'normal'.
I have several home exercises to do everyday before Therapy on Friday. What a process
 
So ... 1st thing was to PRINT out and save your posts along with the Sketchup files. done.
Now to study. Must say, I feel familiar with most everything ... after learning from the first build with You.
I still have most all the acoustic materials from that build ... so that's a start.
Window plug. alright ... I need to research how to go about building that and materials. Keeping in mind ... minimal impact on the house
[a few holes expected
 ].
as my brain fades ... Glenn, I tried to Render a few scenes from the SU file [using an earlier version of V-Ray], but they didn't come out to well ... lighting seemed to be the issue. What Renderer did you use for the pics you posted. Curious.
I got to get some tylanal and lay down ... but Glenn ... blown away with your work and knowledge you shared.
Thank-you
RJHollins
			
									
									oh, to be 30 years younger
OK ... so I'm a bit wipe out at the moment, having gone to Phys Therapy today [they threw me around the room several times,
had me baking in a neck wrap ... and then proceeded to pull/stretch and even twist the neck and shoulders.
The good news ... at no point did I have my eyes spinning or bouncing, and no feeling of being pulled down to the floor. Even though
I still have a small sense of being detached from body ... there IS a noticed improvement ... a step toward 'normal'.
I have several home exercises to do everyday before Therapy on Friday. What a process
 So ... 1st thing was to PRINT out and save your posts along with the Sketchup files. done.
Now to study. Must say, I feel familiar with most everything ... after learning from the first build with You.
I still have most all the acoustic materials from that build ... so that's a start.
Window plug. alright ... I need to research how to go about building that and materials. Keeping in mind ... minimal impact on the house
[a few holes expected
as my brain fades ... Glenn, I tried to Render a few scenes from the SU file [using an earlier version of V-Ray], but they didn't come out to well ... lighting seemed to be the issue. What Renderer did you use for the pics you posted. Curious.
I got to get some tylanal and lay down ... but Glenn ... blown away with your work and knowledge you shared.
Thank-you
RJHollins
Up All Nite Studio - 2022 [Control Room]
i'm using SU Podium (in this case - fast mode). i've compared a lot of products over the past few years, and some are probably great once you spend 200 hours learning them... so i got lazy and got the SU Podium and it's been working very nicely. and if i want to get crazy i have Blender. my old Kerkythea just cannot handle the complex models in a reliable fashion so i've moved on...
			
									
									Up All Nite Studio - 2022 [Control Room]
Trying out different Search terms relating to a Window Plug  ...  saw only one post referring to a need for one.
Does Rod Gervais cover this in his book ? I'd have to dig it out of storage
			
									
									Does Rod Gervais cover this in his book ? I'd have to dig it out of storage
Up All Nite Studio - 2022 [Control Room]
OK ... kicking around a couple ideas building the window plug.
The window is: 2'-10 1/2" x 5' - 1/4" [basic measure ... no doubt the opening is NOT square].
The internal depth of sill to glass is 4".
1st wonder: Can I build this as 2 pieces ? stacked ? Depending on the materials [weight] and the girth, it may be difficult for me
to do by myself. [funny how everyone disappears when work might be needed
 ].
Anyway, my thought would be to first build a wooden frame that would fit inside the sill. Also thinking of stapling some 'batting' to the
outside edge of this frame, so that when inserting, it doesn't tear up the sill ... and maybe provide a little flex when sliding it in.
If I used something like, 1x2 or 2x2 to make the frame [to fit], I could then cut/cover the frame with maybe 5/8" type-x drywall [left over from
the 1st build]. I could then [otherside] load the frame with 2" rigid fiberglass [KNUF] ... then
I could wrap the entire piece using the same fabric I used for the broadband absorbers.
Is this a decent plan ?
Meanwhile ... still searching for details on how to build this.
Thanks
			
									
									The window is: 2'-10 1/2" x 5' - 1/4" [basic measure ... no doubt the opening is NOT square].
The internal depth of sill to glass is 4".
1st wonder: Can I build this as 2 pieces ? stacked ? Depending on the materials [weight] and the girth, it may be difficult for me
to do by myself. [funny how everyone disappears when work might be needed
Anyway, my thought would be to first build a wooden frame that would fit inside the sill. Also thinking of stapling some 'batting' to the
outside edge of this frame, so that when inserting, it doesn't tear up the sill ... and maybe provide a little flex when sliding it in.
If I used something like, 1x2 or 2x2 to make the frame [to fit], I could then cut/cover the frame with maybe 5/8" type-x drywall [left over from
the 1st build]. I could then [otherside] load the frame with 2" rigid fiberglass [KNUF] ... then
I could wrap the entire piece using the same fabric I used for the broadband absorbers.
Is this a decent plan ?
Meanwhile ... still searching for details on how to build this.
Thanks
Up All Nite Studio - 2022 [Control Room]
one option - remove existing window trim. build a new 1x3 trim (square edges) with a spacing from the opening, say 3". then the plywood panel (3/4" thick) sits on the wall edge you exposed. you can use twist nuts to secure to the new trim or deadlock bolts etc. on the inside of the plywood you create an absorber which sits gently against the window and damps the whole thing.
			
									
									Up All Nite Studio - 2022 [Control Room]
gullfo wrote:Source of the post one option - remove existing window trim. build a new 1x3 trim (square edges) with a spacing from the opening, say 3". then the plywood panel (3/4" thick) sits on the wall edge you exposed. you can use twist nuts to secure to the new trim or deadlock bolts etc. on the inside of the plywood you create an absorber which sits gently against the window and damps the whole thing.
Hi Glenn,
I'll try to send photos of the actual window [from the inside], to see better what we have.
overall view ... tough with drapes in the way
close up of bottom sill. There is no other trim.
Excuse the paper shade ... I put that up when we first moved in. Incredible glue they used
Hope this helps.
Thanks Glenn !
NOTE: OK ... so why are the pictures sideways

Up All Nite Studio - 2022 [Control Room]
here's the idea in pics. just add some rubber seals around the inside to complete it.
							
			
									
									- 
				
- Similar Topics
 - Statistics
 - Last post
 
 
- 
				
- 
												Garage to single room studio Attachment(s)
by tl_balk » Fri, 2025-Apr-25, 14:59 » in RECORDING STUDIO DESIGN - 
						Replies: 7
Views: 153564 - 
						 by gullfo
						View the latest post 
Tue, 2025-May-06, 16:03
 
 - 
												
 - 
				
- 
						Replies: 1
Views: 46959 - 
						 by Starlight
						View the latest post 
Mon, 2024-Dec-16, 12:01
 
 - 
				
- 
												What about Acoustical Room Dimensions? Attachment(s)
by basscleaner » Mon, 2024-Nov-11, 11:26 » in OTHER ACOUSTIC SPACES - 
						Replies: 4
Views: 37705 - 
						 by basscleaner
						View the latest post 
Mon, 2024-Nov-18, 09:18
 
 - 
												
 - 
				
- 
												What is the best sounding room in the world for drums?
by Diegel » Fri, 2025-Feb-28, 13:48 » in RECORDING STUDIO DESIGN - 
						Replies: 2
Views: 20416 - 
						 by Diegel
						View the latest post 
Fri, 2025-Feb-28, 18:02
 
 - 
												
 
Who is online
Users browsing this forum: No registered users and 8 guests